EasyManua.ls Logo

Zanotti BGM11202F - Bdb235 Ts02 F

Zanotti BGM11202F
86 pages
Print Icon
To Next Page IconTo Next Page
To Next Page IconTo Next Page
To Previous Page IconTo Previous Page
To Previous Page IconTo Previous Page
Loading...
DATA:
REV.nr. FOGLIO nr :
DI
13
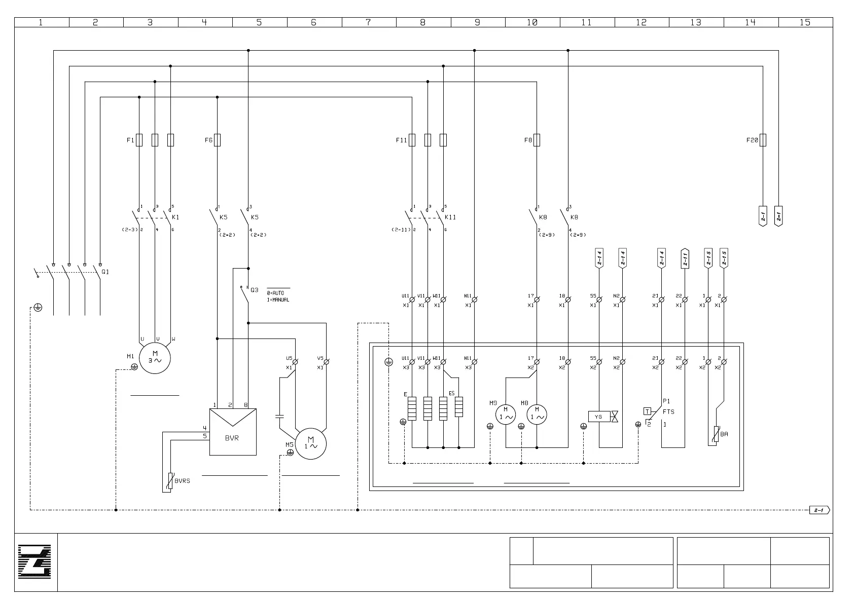
BDB235NS02F
BDB235NS02F/ANM
BDB235NS316F
AB08002
15-04-2003Soncini
DISEGNO nr.
ApprovatoDisegnato
Soncini
DATA: Approvato
MODELLO
BDB235TS02F
380-400-415V/3N~/50Hz
PE
EVAPORATOR
220-230-240V/1N~/50Hz
COMPRESSOR
CONDENSER FAN
DEFROST HEATER EVAPORATOR FANS
SPEED REGULATOR
"T" 32A 4A 10A 4A
"N" I max.=10,7 A
In=0,64 A
I max.=6,8 A In tot.=1,24 A
"N" 25A
"T" I max.=13,8 A
4A
SWITCH:
GV GV GV GV
GV
L14
L16
L14
L16
L14
L14
L16
GV
GV
GV
GV
L15
L15
L1
N1
L2
N
L3
L12
L10
L24
L11
N1
L24 L24
L24 L24
L23 L23
L22
N1
1
8 8
77
6 6
555
N1
3 33
N1
N1
L5
L5 L5
L5
L5
L5L9
L8
L23
L23
L22
N1 N1
N1
L20
L22
L22
L18
L20L20
L21
L19
L17
L6
L6
L6
L6
L6
L6L7
L18
L13
L25
GVGV
GV
GV
GV
GV
L18
N1
N1
N1 N1 N1
N1
N1
L4
L4
L4
L4
L4
L4
L4
6
6

Related product manuals