EasyManua.ls Logo

Zanotti GM1 - 6 Installation; 6.1 Plates; 6.2 Dimensions; 6.3 Location

Zanotti GM1
21 pages
Print Icon
To Next Page IconTo Next Page
To Next Page IconTo Next Page
To Previous Page IconTo Previous Page
To Previous Page IconTo Previous Page
Loading...
22
6 Installation
6.1 Plates
The unit is supplied with warning and attention plates as listed in the relevant table.
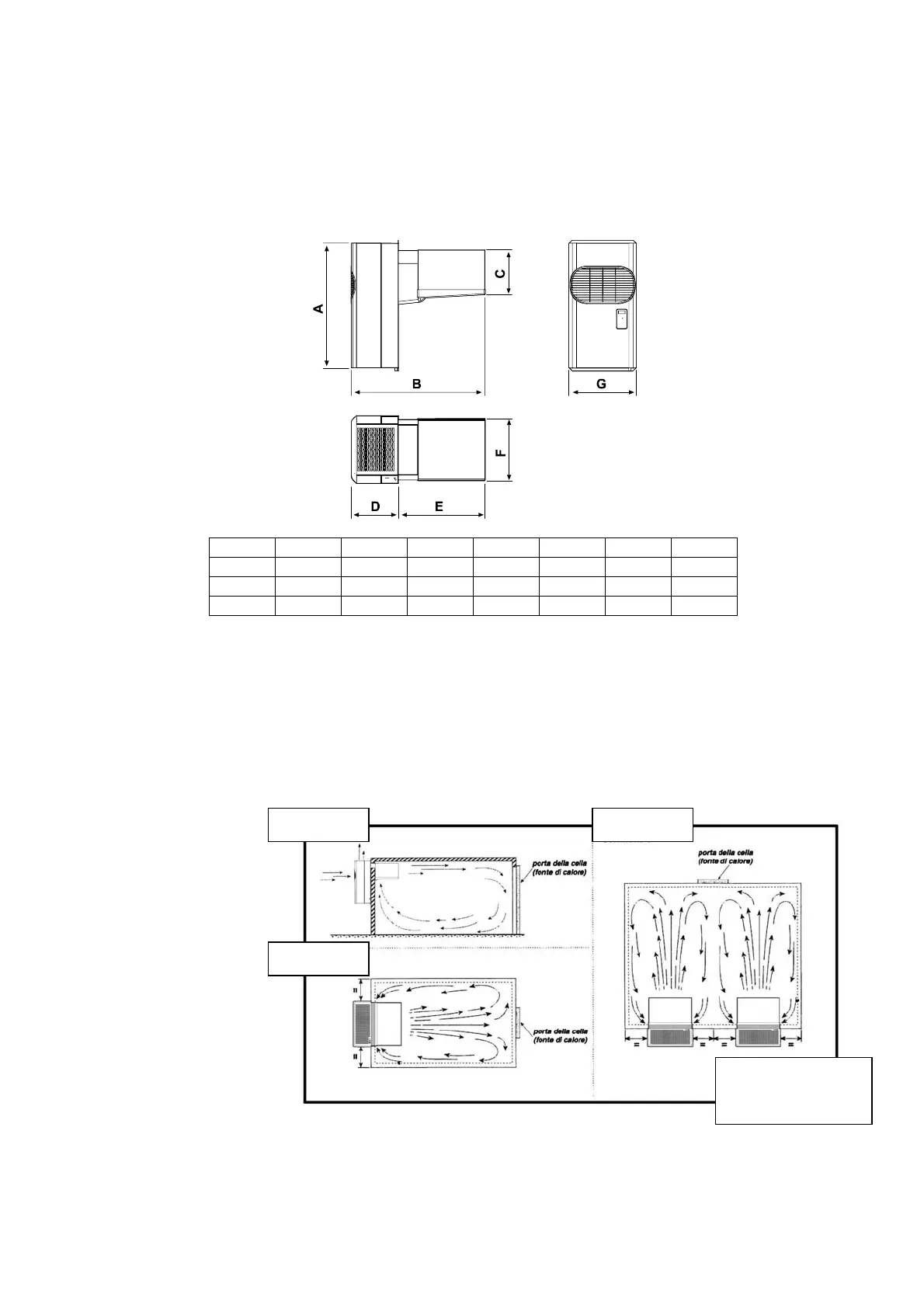
6.2 Dimensions
A B C D E F G
GM1 735 790 264 280 510 368 400
GM2 830 790 264 280 510 585 620
GM3 830 982 364 350 632 585 620
6.3 Location
To obtain optimal operation of the unit act as follows:
A) Place the unit in a well ventilated room, far from heat sources.
B) Limit the number of door openings.
C) Make sure that the unit has good air supply and discharge.
D) Fit a drain line to the defrost water drain connection in the lower part of the unit.
Note: GM units are equipped with automatic evaporation of defrost water; drain is
just a precaution in case of troubles.
6.4 Free room
When installing the unit leave enough free room to allow opening, correct use and easy
maintenance in safe conditions.
Solution 1 Solution 3
Solution 2
Installation in a
coldroom with
more than one unit

Related product manuals