EasyManua.ls Logo

Zanotti MGS - Mdb340 Ns02 F

Zanotti MGS
86 pages
Print Icon
To Next Page IconTo Next Page
To Next Page IconTo Next Page
To Previous Page IconTo Previous Page
To Previous Page IconTo Previous Page
Loading...
DATA:
REV.nr. FOGLIO nr :
DI
13
MDB340NS02F
MDB340NS151F
MDB340NS317F
AB10002
16-04-2003Soncini
DISEGNO nr.
ApprovatoDisegnato
Soncini
DATA: Approvato
MODELLO
7DB340NS02F
01
28-03-2005 SONCINI
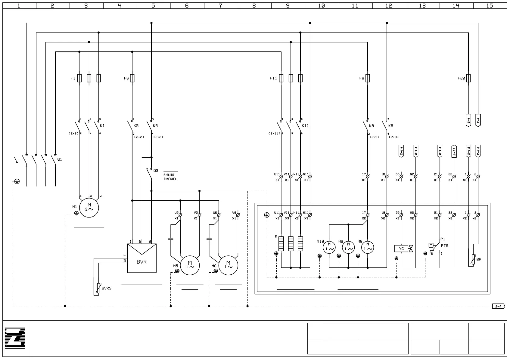
"BVR" nel quadro
380-400-415V/3N~/50Hz
PE
EVAPORATOR
220-230-240V/1N~/50Hz
COMPRESSOR
CONDENSER
DEFROST HEATER EVAPORATOR FANS
SPEED REGULATOR
6A 16A 6A
In=0,64 A
I max.=10,9 A In tot.=3x0,73 A
CONDENSER
In=0,64 A
SWITCH:
I max=13,6 A
4A
FAN n°1 FAN n°2
GV
GV GV GV GV GV
L7
L4
L4
L6
L6
N1
L7
L17
L15
L7
N1
N1
GV
L15
L17
L4
L4
L8
L18L19L19
L23
L21 L20L21
L19
L23
L21
L22L23
L6
L9
L24
L14
L11 L10
L24 L26
L25
L25
L25
3 33
N1N1
555
6
6 6 6
7 7
8
L4
GV
7
N1
L25
N1
L13 L12
88
N1
L17
L6
L6
L6
L25
L3
N
L2
L1
L17
L7
L7
L7
L16
L4
L4
N1
1
N1
N1
N1
N1
L16
N1
L25
L15 L15
L17
L24
L24
N1
GV
GV GVGV
GV
GV GV
GV
GV
L15
L15
L24

Related product manuals