EasyManua.ls Logo

Zanussi FCF101E - Page 3

Zanussi FCF101E
4 pages
Print Icon
To Next Page IconTo Next Page
To Next Page IconTo Next Page
To Previous Page IconTo Previous Page
To Previous Page IconTo Previous Page
Loading...
FORCED AIR CONVECTION OVENS
FCF-10 1/1
BCAC1 2013-10-28 The Company reserves the right to alter technical specifications without prior notice.
www.zanussiprofessional.com
ZANUSSI
P R O F E S S I O N A L
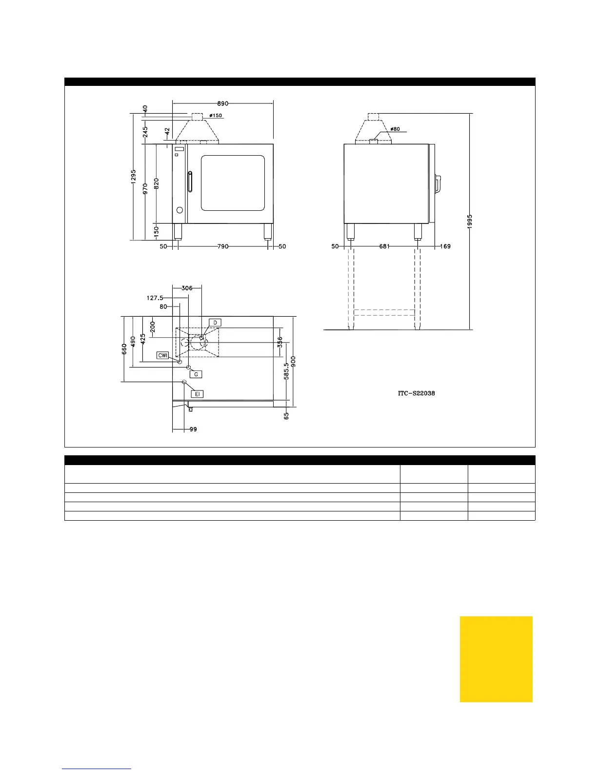
G - Gas connection 1/2" 1/2"
EI - Electrical connection 220/230 V, 1N, 60 220/230 V, 1N, 50
D - Water drain 25mm 25mm
CWI - Cold water inlet 3/4" 3/4"
FCF101G6
240269
FCF101G
240201
LEGEND
240269, 240201

Related product manuals