EasyManua.ls Logo

Zanussi LB2N - Page 3

Zanussi LB2N
5 pages
Print Icon
To Next Page IconTo Next Page
To Next Page IconTo Next Page
To Previous Page IconTo Previous Page
To Previous Page IconTo Previous Page
Loading...
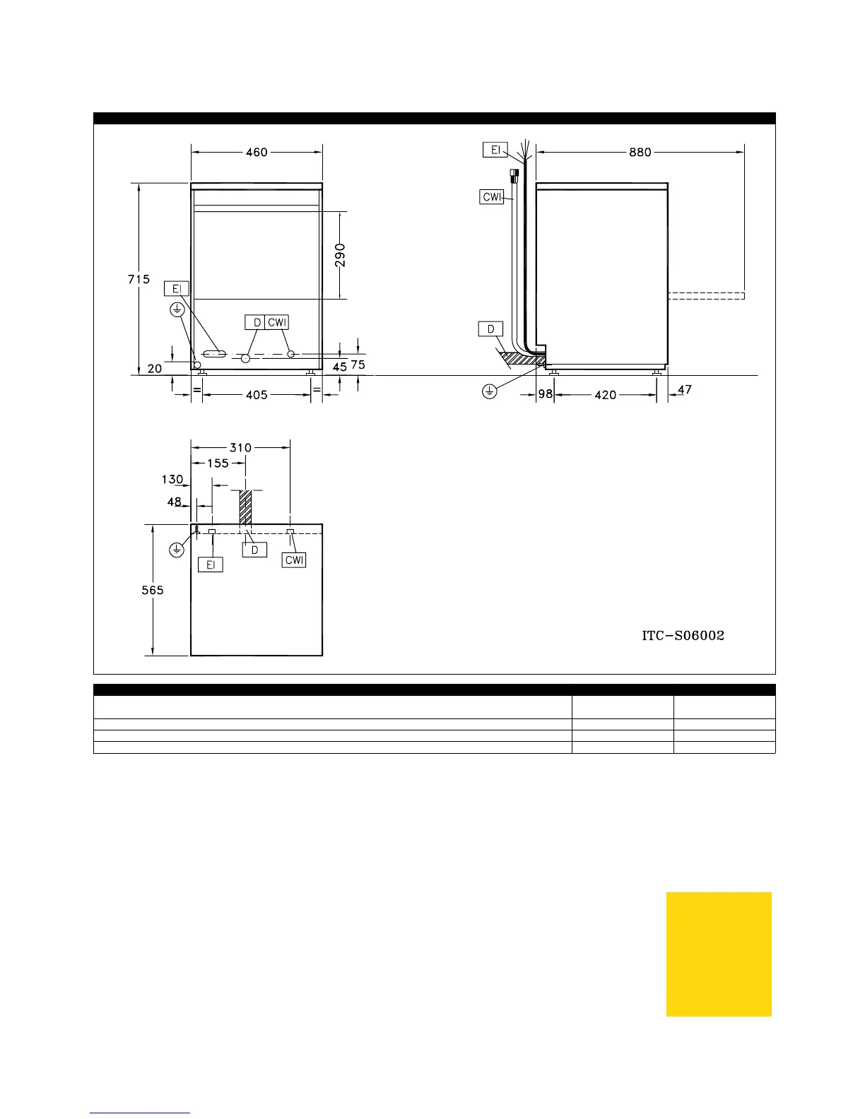
GLASSWASHERS
LB-2
EAAB2 2013-10-03 The Company reserves the right to alter technical specifications without prior notice.
www.zanussiprofessional.com
ZANUSSI
P R O F E S S I O N A L
EI - Electrical connection 230 V, 1N, 50 230 V, 1N, 50
D - Water drain 22mm 22mm
CWI - Cold water inlet G 3/4" G 3/4"
LB2N
402021
LB2
402020
LEGEND
402021, 402020

Related product manuals