EasyManua.ls Logo

Zanussi LB2N - Page 4

Zanussi LB2N
5 pages
Print Icon
To Next Page IconTo Next Page
To Next Page IconTo Next Page
To Previous Page IconTo Previous Page
To Previous Page IconTo Previous Page
Loading...
GLASSWASHERS
LB-2
EAAB2 2013-10-03 The Company reserves the right to alter technical specifications without prior notice.
www.zanussiprofessional.com
ZANUSSI
P R O F E S S I O N A L
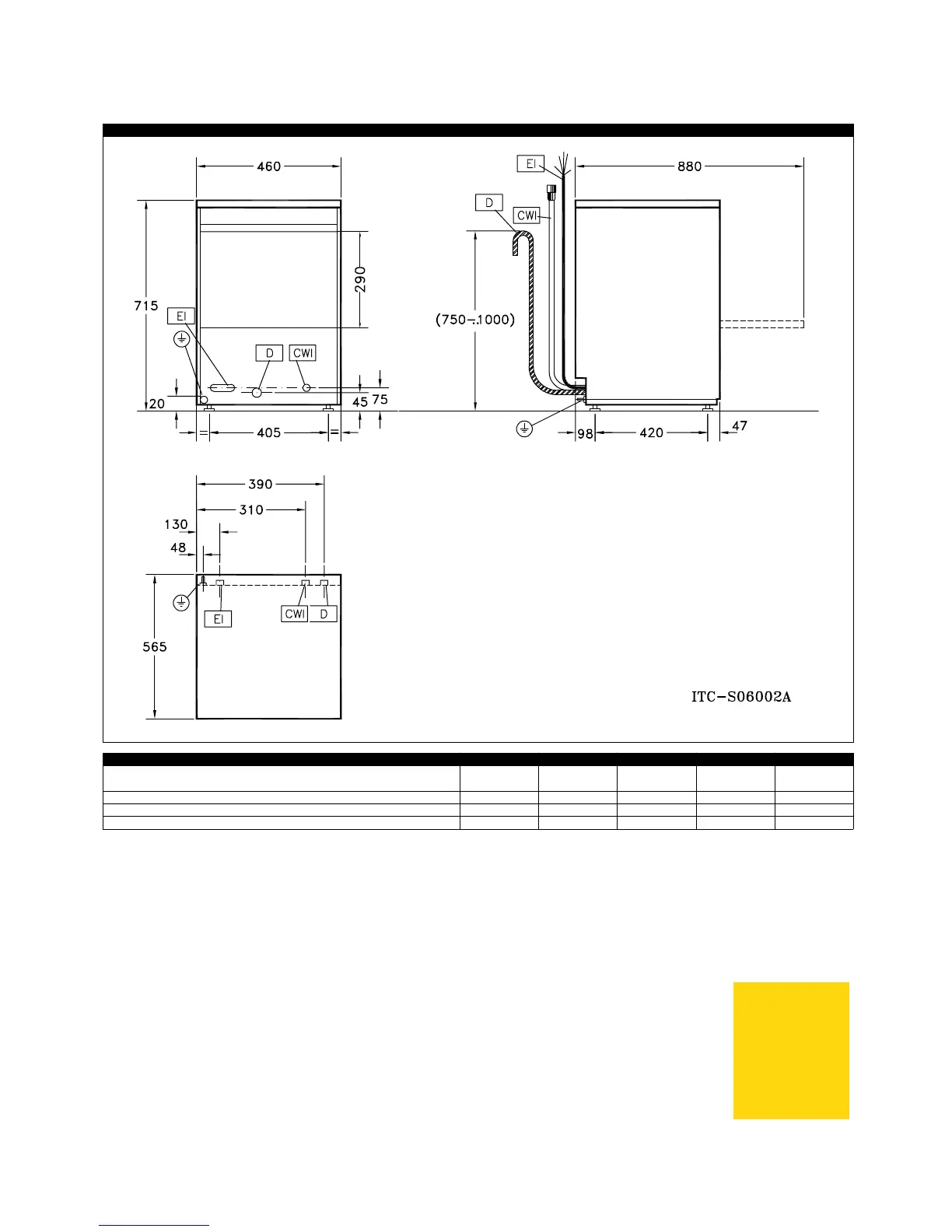
EI - Electrical connection 400 V, 3N, 50 230 V, 1N, 50 230 V, 1N, 50 230 V, 1N, 50 230 V, 1N, 50
D - Water drain 27mm 27mm 27mm 22mm 27mm
CWI - Cold water inlet G 3/4" G 3/4" G 3/4" G 3/4" G 3/4"
LB2DP3
402066
LB2WSDD
402064
LB2TOP
402065
LB2DPDI
402062
LB2WSDPDI
402063
LEGEND
402066, 402063, 402062, 402065, 402064

Related product manuals