EasyManua.ls Logo

ZEKS 1200HSFA400 - 575 V;3;60 Hz DPCM-PLUS Wiring

ZEKS 1200HSFA400
34 pages
Print Icon
To Next Page IconTo Next Page
To Next Page IconTo Next Page
To Previous Page IconTo Previous Page
To Previous Page IconTo Previous Page
Loading...
28
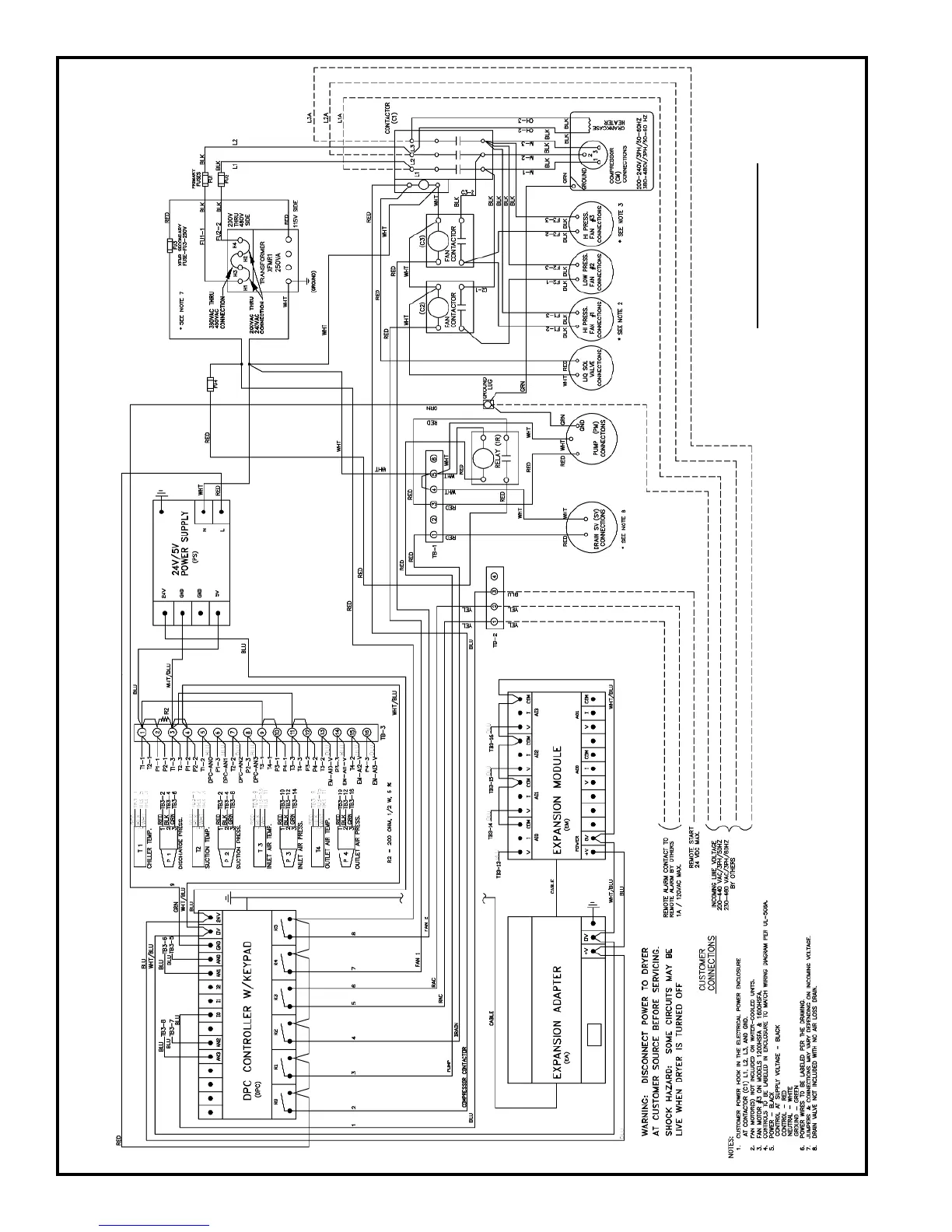
WIRING DIAGRAM
1000-1600HSFA&W with DPC™-PLUS
208, 230, 460V/3/60HZ
200, 220, 380, 400, 415, 440V/3/50HZ
TM500163Q

Related product manuals