EasyManua.ls Logo

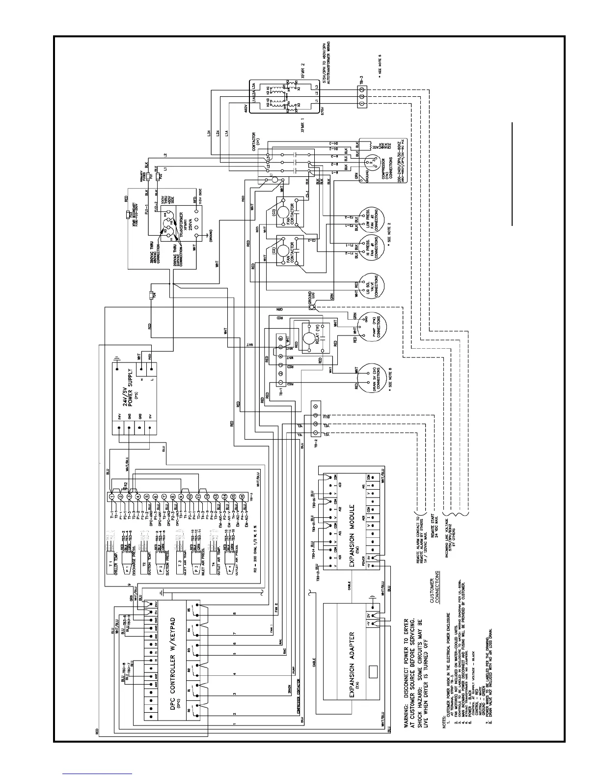
ZEKS 1200HSFA400 - 575 V;3;60 Hz DPCM-PLUS with Transformed Fans Wiring

ZEKS 1200HSFA400
34 pages
Print Icon
To Next Page IconTo Next Page
To Next Page IconTo Next Page
To Previous Page IconTo Previous Page
To Previous Page IconTo Previous Page
Loading...
29
WIRING DIAGRAM
1000HSFA&W, 1200HSFA&W with DPC™-PLUS
575V/3/60HZ
TM500607B

Related product manuals