EasyManua.ls Logo

Zenith A20A22D - Jack & Switching Circuit

Zenith A20A22D
119 pages
Print Icon
To Next Page IconTo Next Page
To Next Page IconTo Next Page
To Previous Page IconTo Previous Page
To Previous Page IconTo Previous Page
Loading...
CRITICAL SAFETY COMPONENTS ARE IDENTIFIED BY THE LETTER “X“ IN THEIR
COMPONENT DESIGNATORS. REPLACE ONLY WITH PART NUMBERS SPECIFIED.
ALL SYMBOLS WITH “M” ON END OF DESIGNATOR
INDICATE SURFACE MOUNTED COMPONENT
6-27
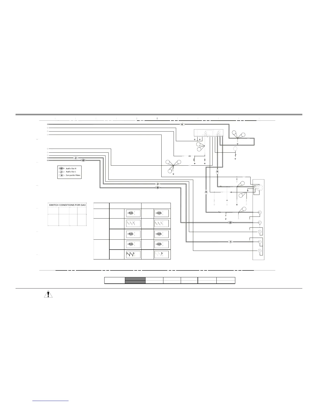
GA SHEET 27
GA3 JACK & SWITCHING CIRCUIT
12
11
10
9
8
7
6
5
4
3
2
1
1211109
G
F
E
D
C
B
A
87654321
CH-2
CH-1
V in
V in
TV in
TV in
37,39,
Line
Source
00
11
11
11
0 (in)
1(out)
0 (in)
1(out)
S-VHS
CVext
Ant/Cable
Ant/Cable
Switch
TA1268
42
Switch
LA7222
Sense
Y/C
Video
Main
(Y/C)
S-VHS
Comp-Video
Ant/Cable
SIGNAL
I/O WAVE FORMS FOR IC2001 (LA7222)
Ext-Video
Chroma-Main
Chroma-Main
Ext-Video
Chroma-Main
OUTPUT
Luma Y
Chroma C
Chroma-Comb
CV
CVext
Chroma-Comb
RF
INPUT
0.344V0.688V
0.5V
0.210V
1V
1V
0.5V
0.21V
WF35
1V
1V
WF29
WF28
WF37
WF36
WF34
WF33
WF32
WF31
WF30
20 uS
20 uS
20 uS20 uS
20 uS
20 uS
20 uS
20 uS
20 uS
20 uS
2.2K
PROV
50V
220pF
6
5
VIDEO-IN
SHT.25
AUXSWITCH1
SHT.25
CM
SHT.25
Y/C-SENSE
SHT.25
EXT-VIDEO
SHT.25
CHROMA-COMB
SW
+9V
16V
100uF
0 Ohm
.1 W
75
47
50V
10uF
3K
25V
0.01
75
50V
27pF
50V
10uF
SHT.25
VM-OUT-R
SHT.25
VM-OUT-L
SHT.25
EXT-R
47
SHT.25
EXT-L
11
10
VARIABLE
MONITOR
OUT_ LEFT
4.7uH
8
7
VARIABLE
MONITOR
OUT_RIGHT
9
EXT-R
WF
33
WF
37
WF
32
WF
29
WF
28
WF
30
WF
35
WF
34
WF
31
100
25V
0.01uF
10K
WF
36
JUMPER
9.1V
YC
1
3
4
2
1
S-VHS
1K
75
9.1V
5.1V
12
A-18785-02
EXT-L
R2909M
R2911M
C2904M
J1
C2951
R2907M
R2904
R2906
C2908
R2905
C2903M
R2903
C2902M
C2905
R2902
J1
L2901
020-04129-16
J1
J1
R2914
C2901M
R2920
R2910
ZD2901
103-279-18A
J1
R2916
221-1171
IC2001
R2901
103-00279-18
ZD2903
103-279-10A
ZD2902
M ODULE
009-01996 009-01997 009-01997-01 009-01998 009-02041
FEATURES MTS STEREO MTS STEREO MTS STEREO MTS STEREO MTS STEREO
COMPONENT LEVEL
REPA IR ONLY

Table of Contents

Other manuals for Zenith A20A22D

Related product manuals