EasyManua.ls Logo

Zero Zone RVLC30 - X83; RVLC30 BB Base Locations

Default Icon
44 pages
Print Icon
To Next Page IconTo Next Page
To Next Page IconTo Next Page
To Previous Page IconTo Previous Page
To Previous Page IconTo Previous Page
Loading...
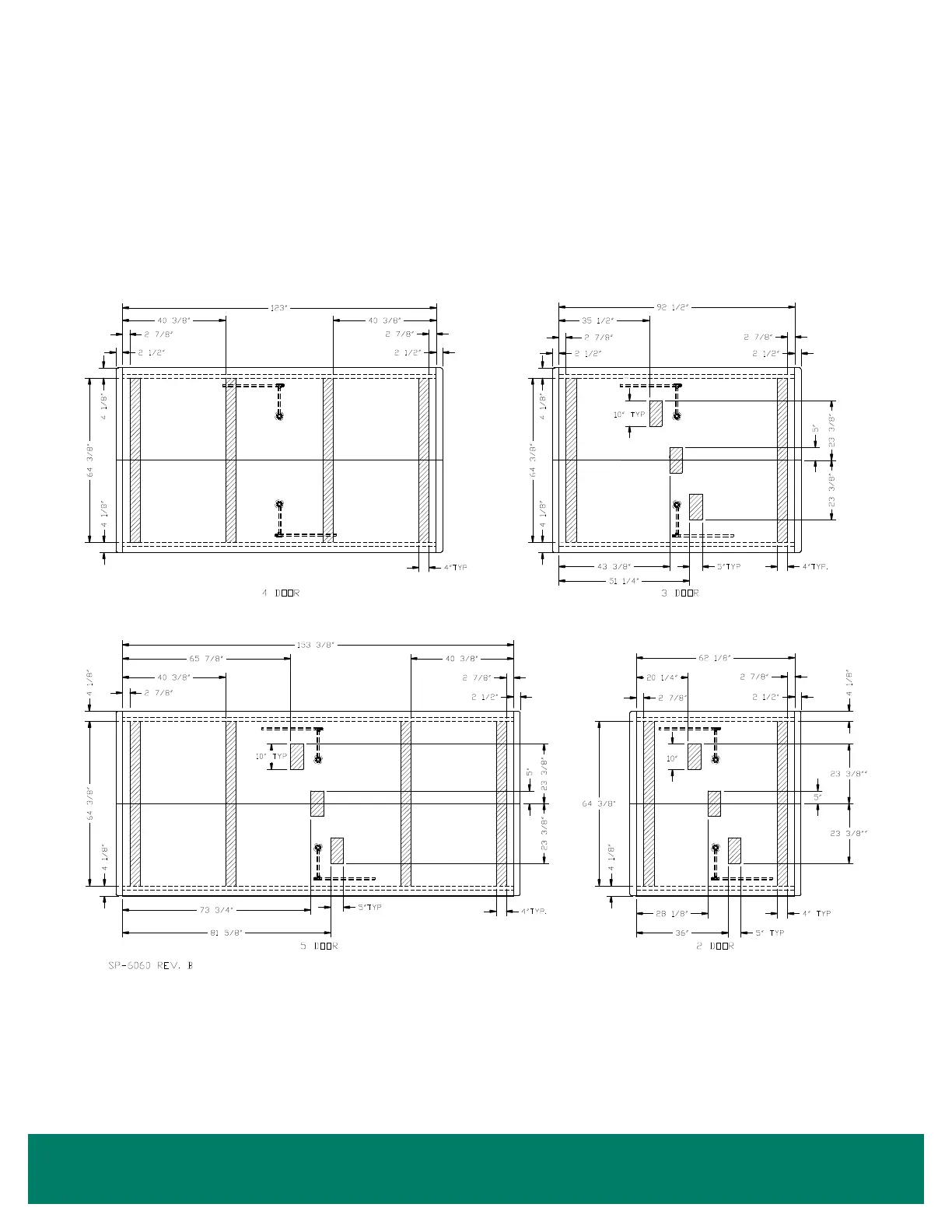
22 • Illustrations - RVLC30BB Base Locations
ILLUSTRATIONS
FIGURE 5
RVLC30BB Base Locations
Refer back to page 5

Related product manuals