EasyManua.ls Logo

Zibro Laser FF 55 - Clearance Requirements Diagrams

Zibro Laser FF 55
24 pages
Print Icon
To Next Page IconTo Next Page
To Next Page IconTo Next Page
To Previous Page IconTo Previous Page
To Previous Page IconTo Previous Page
Loading...
Chapter 1, INSTALLATION
29
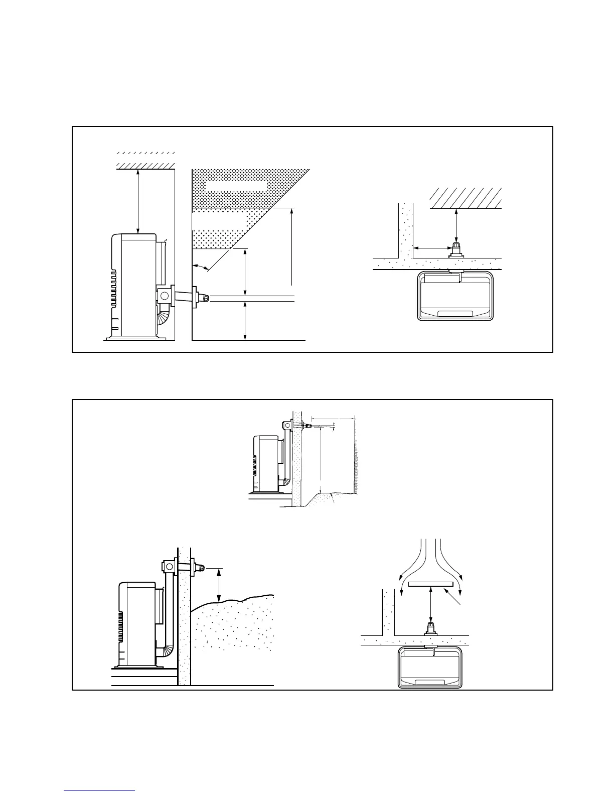
Fig. 1-2 Gaps heater/exhaust pipe
Fig. 1-1 (continued) gaps heater/exhaust pipe
Flammable object
Not less than 60 cm
Flammable object
Non-flammable
o
bject
45°C
Not less than 30 cm
Exhaust pipe
Not less than 60 cm
Not less than 20 cm
Not less
than 45 cm
Not less
than 45 cm
Frontal obstruction
45 cm
or mor
e
50 cm
or mor
e
Snow-covered surface or ground
Impor
tant:
The gap with the gr
ound must be enlar
ged in ar
eas
subject to heavy snowfall.
Important: A windbreaker may be necessary in open areas that
are subjected to strong winds.
Extension tube of
max. 2.5 metres
Must be higher
Snow
Strong wind
Distance from
exhaust pipe to
windbreaker mini-
mum 45 cm
Not less
than
45 cm
Windbreaker

Related product manuals