EasyManua.ls Logo

ABB ACS800 Series - Page 92

ABB ACS800 Series
174 pages
To Next Page IconTo Next Page
To Next Page IconTo Next Page
To Previous Page IconTo Previous Page
To Previous Page IconTo Previous Page
Loading...
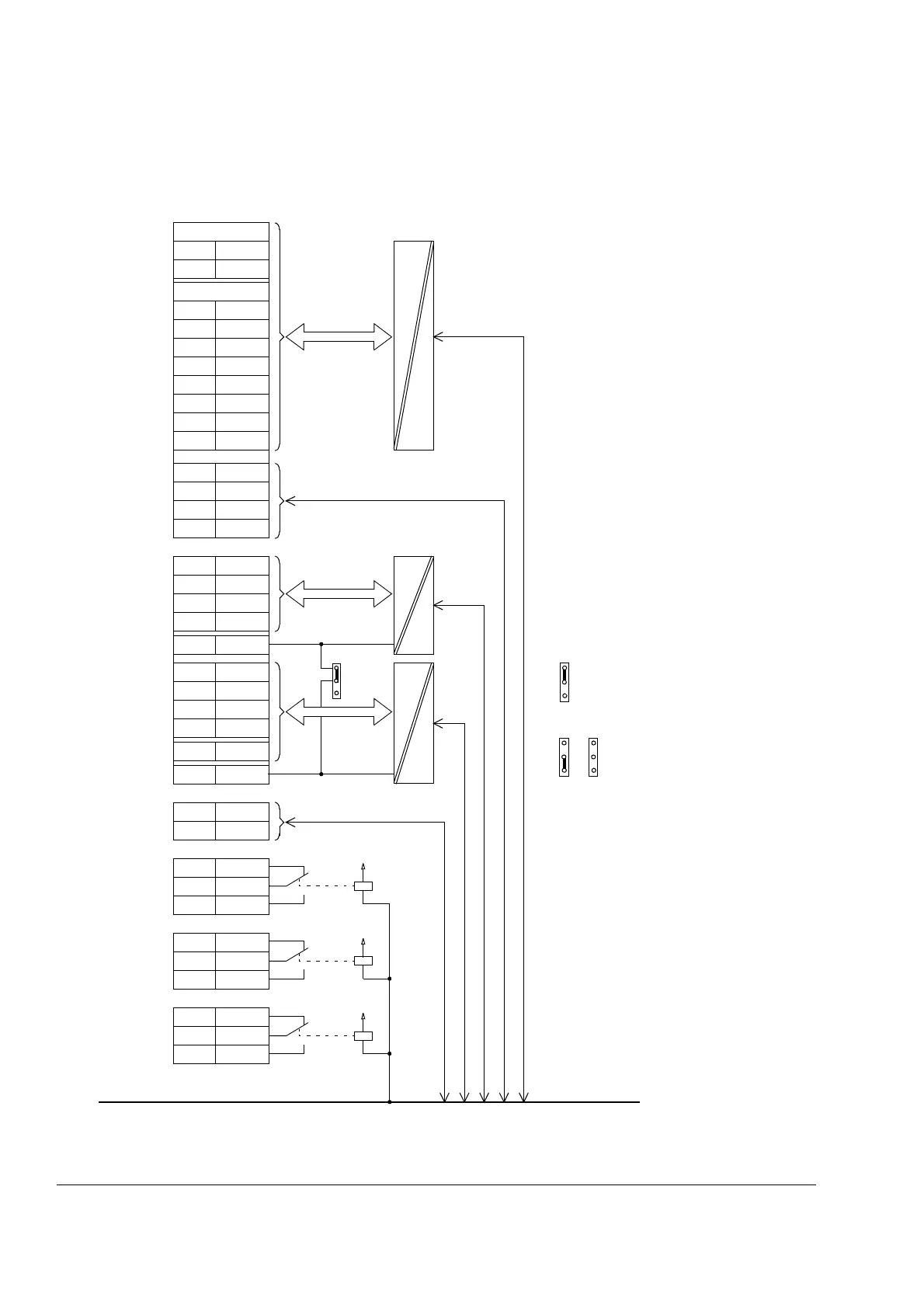
Motor control and I/O board (RMIO)
92
Isolation and grounding diagram
X20
1VREF-
2AGND
X21
1VREF+
2AGND
3AI1+
4AI1-
5AI2+
6AI2-
7AI3+
8AI3-
9AO1+
10 AO1-
11 AO2+
12 AO2-
X22
1DI1
2DI2
3DI3
4DI4
9 DGND1
5DI5
6DI6
7 +24VD
8 +24VD
11 DIIL
10 DGND2
X23
1 +24 V
2GND
X25
1RO1
2RO1
3RO1
X26
1RO2
2RO2
3RO2
X27
1RO3
2RO3
3RO3
Common mode
voltage between
channels ±15 V
J1
(Test voltage: 500 V AC)
or
Jumper J1 settings:
All digital inputs share a common
ground. This is the default setting.
Grounds of input groups
DI1…DI4 and DI5/DI6/DIIL
are separate (insulation
voltage 50 V).
Ground
(Test voltage:
4kVAC)

Table of Contents

Other manuals for ABB ACS800 Series

Related product manuals