EasyManua.ls Logo

ABB AV1 - Page 86

ABB AV1
126 pages
Print Icon
To Next Page IconTo Next Page
To Next Page IconTo Next Page
To Previous Page IconTo Previous Page
To Previous Page IconTo Previous Page
Loading...
SUPPORT SERVICES
ADDITIONAL SPARE PARTS
9 - 16
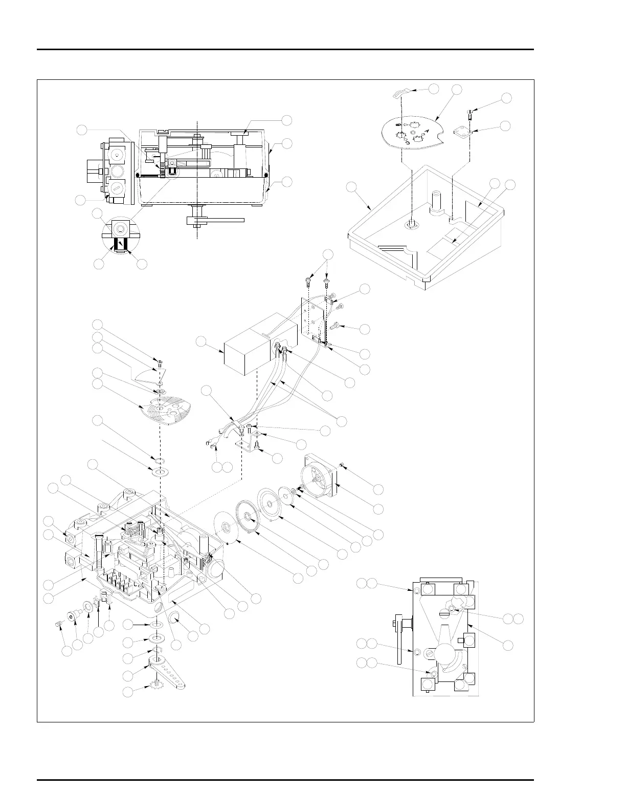
Figure 9-4. Type AV2 Positioner (Page 1 of 2)
T00784A
58
81
81
87
88
68
58
80
51
19
30
55
13
32
62
14
35
50
44
2
1
38
31
43
74
61
46
18
7
20
24
22
73
23
54
53
25
47
63
32
34
108
39
44
15
48
85
77
70
93 94
76
58
SIDE VIEW
O1
O2
O2
O1
I
I
S
65
65
65
65
66
66
67
67
17
FRONT VIEW
37
10
71
41
40
2
1
33
INSIDE OF COVER
2
36
110
82
13
90
101

Table of Contents

Other manuals for ABB AV1

Related product manuals