EasyManua.ls Logo

ABB E6H 50 - Page 145

ABB E6H 50
161 pages
Print Icon
To Next Page IconTo Next Page
To Next Page IconTo Next Page
To Previous Page IconTo Previous Page
To Previous Page IconTo Previous Page
Loading...
L2234
Emax
144/158
Doc. No.
Model
1SDH000460R0002
Apparatus
Scale
Page No.
L2778
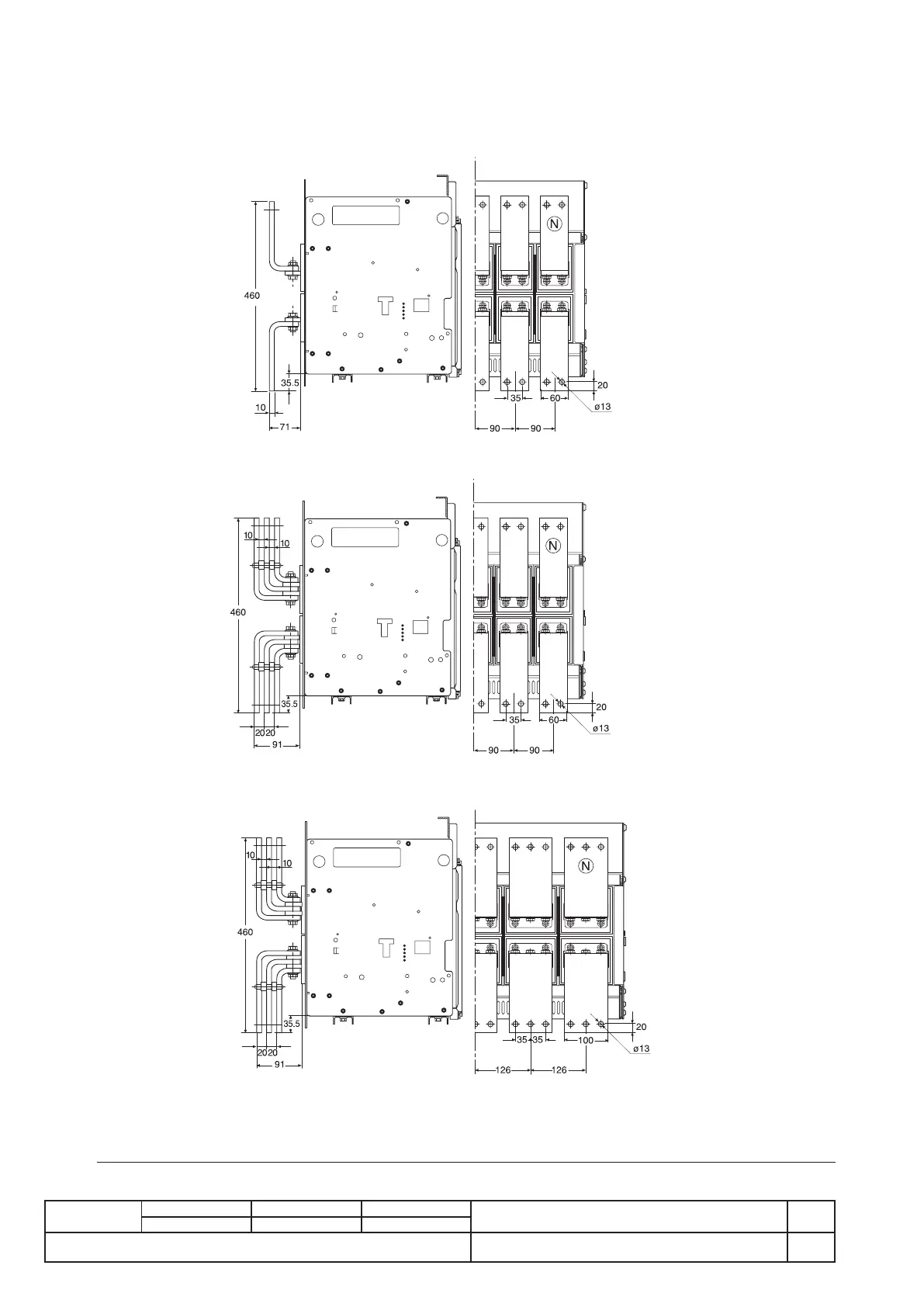
E1
E2
E3
Withdrawable circuit-breaker
Version with front terminals
Fig. 43

Table of Contents

Related product manuals