EasyManua.ls Logo

ABB E6H 50 - PR120;D-M Communication Module

ABB E6H 50
161 pages
Print Icon
To Next Page IconTo Next Page
To Next Page IconTo Next Page
To Previous Page IconTo Previous Page
To Previous Page IconTo Previous Page
Loading...
L2234
Emax
157/158
Doc. No.
Model
1SDH000460R0002
Apparatus
Scale
Page No.
L2778
(+)
(+)
(+)
(-)
(-)
(-)
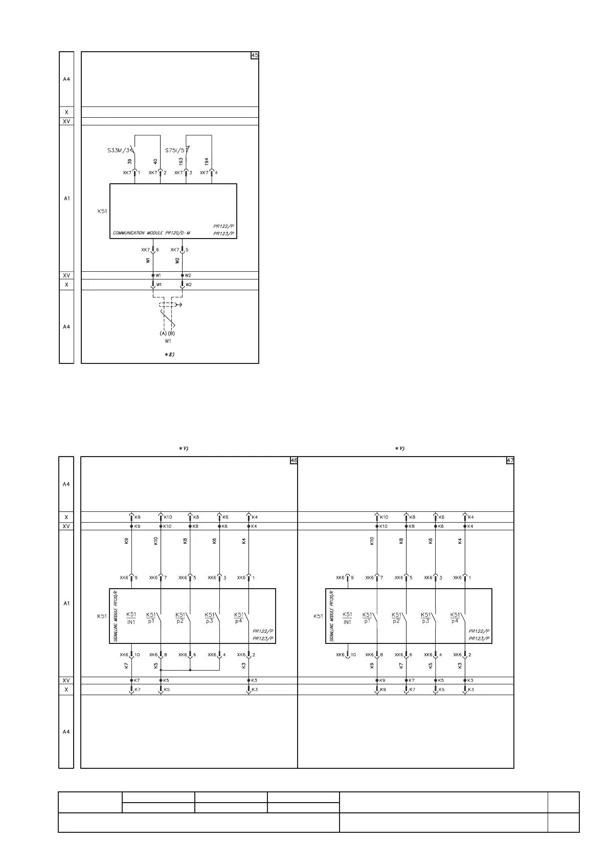
PR120/D-M communication module
PR120/K signalling module

Table of Contents

Related product manuals