EasyManua.ls Logo

ABB E6H 50 - Page 155

ABB E6H 50
161 pages
Print Icon
To Next Page IconTo Next Page
To Next Page IconTo Next Page
To Previous Page IconTo Previous Page
To Previous Page IconTo Previous Page
Loading...
L2234
Emax
154/158
Doc. No.
Model
1SDH000460R0002
Apparatus
Scale
Page No.
L2778
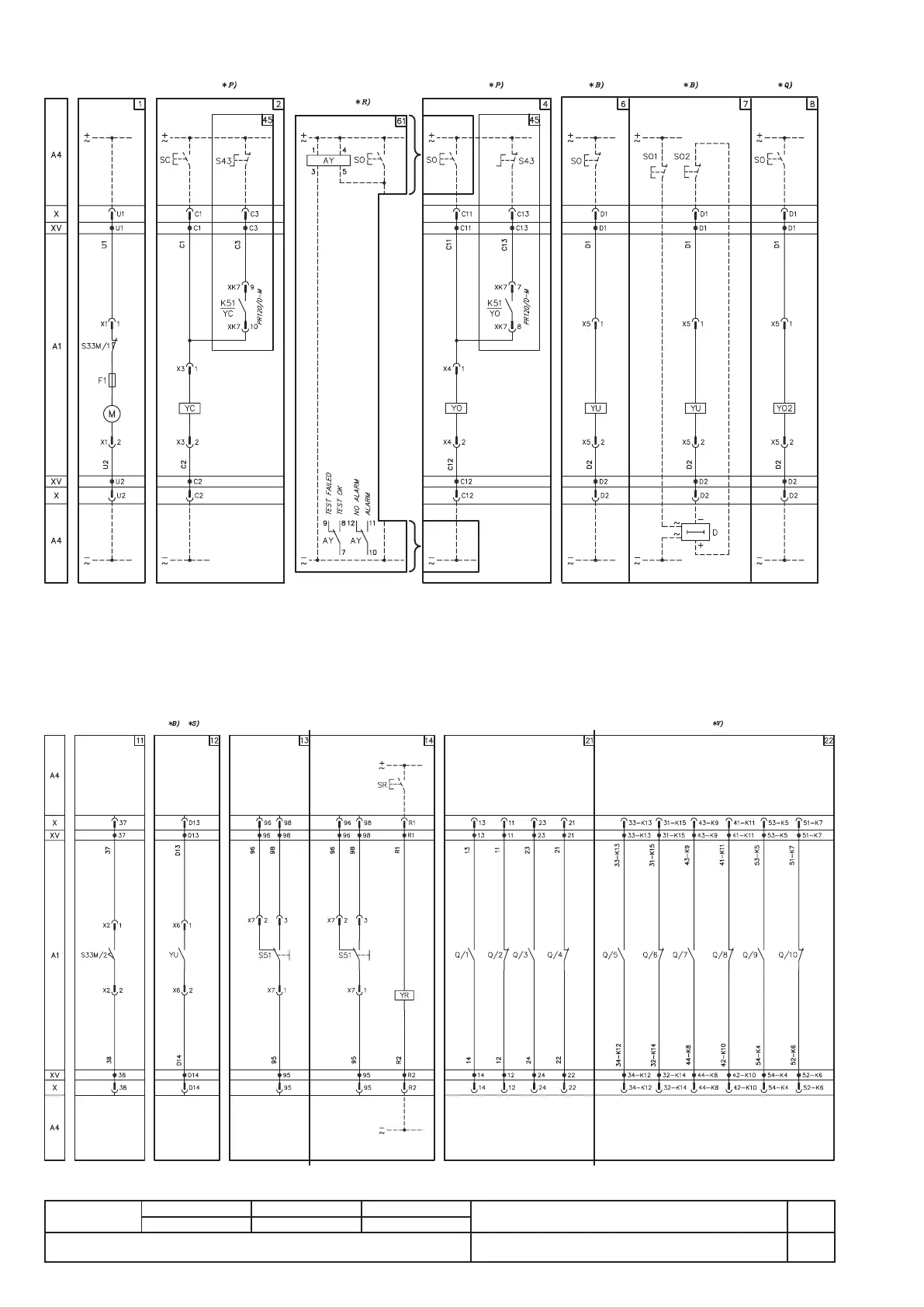
Motor operating mechanism, opening, closing and undervoltage releases
Signalling contacts

Table of Contents

Related product manuals