EasyManua.ls Logo

ABB E6H 63 - Circuit Diagram - Operating Status

ABB E6H 63
161 pages
Print Icon
To Next Page IconTo Next Page
To Next Page IconTo Next Page
To Previous Page IconTo Previous Page
To Previous Page IconTo Previous Page
Loading...
L2234
Emax
153/158
Doc. No.
Model
1SDH000460R0002
Apparatus
Scale
Page No.
L2778
Morsetto
non connesso
Morsetto
non connesso
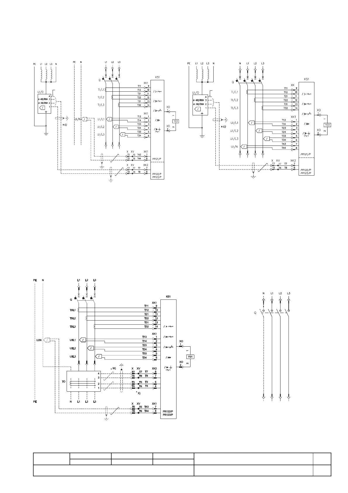
Four-pole circuit-breaker with PR121/P, PR122/P, PR123/P electronic
release
Circuit diagram - Operating status
Three-pole circuit-breaker with PR121/P, PR122/P or PR123/P electronic
release
Three-or four-pole switch-disconnector
Three-pole circuit-breaker with PR122/P or PR123/P electronic release,
residual current protection and U<=690V.
* G)
* G)
UI/N
PE
PE N
T6
T6
UI/L1
N
TO
L1
UI/L3
UI/L2
L2 L3
1
2
3
4
TI/L2
TI/L3
TI/L1
Q
L1 L2 L3
T8
X
T5
T4
T3
W)
*
T7
X
T8
7T8
XV
T5
T43
T44
X)
T4
*
T3
T4
T3
XK1
8
7
4
6
T34
XV
T7
T7
T24
T33
T14
T23
6
XK2
8
4
5
2
3
T13
T31
T32
T12
T21
T22
T11
XK1
1
14
13
XK1
10
12
11
9
1
2
Y01
>>>
>>
>>
2
XO
1
XO
>>
>
K51
Idn: 3A...30A
P
R
1
23
/
P
P
R
1
22
/
P
* Y)
* Y)
Terminal not
connected
Terminal not
connected

Table of Contents

Related product manuals