EasyManua.ls Logo

ABB HCB-1 - Calibration Check

ABB HCB-1
28 pages
Print Icon
To Next Page IconTo Next Page
To Next Page IconTo Next Page
To Previous Page IconTo Previous Page
To Previous Page IconTo Previous Page
Loading...
Type HCB-1 Pilot Wire Relay System 41-971.3M
13
Additional tests for the sequence filter and the oper-
ating unit are described under “Calibration Check.”
These latter tests are not required unless the relay
fails to meet the acceptance tests.
7.1.1. Indicating Contactor Switch (ICS)
Close the main relay contacts and pass sufficient
direct current through the trip circuit to close the con-
tacts of the ICS. This value of current should not be
greater than the particular ICS tap setting being
used. The indicator target should drop freely.
7.2. CALIBRATION CHECK
The following tests are recommended whenever a
check on the relay calibration is desired.
7.2.1. Over-All Relay Check
Over-all calibration can be checked by the procedure
described under “Acceptance Tests.” If the relay has
been recalibrated in the minimum restraint tap (fac-
tory calibration is made in the maximum restraint tap)
the R
PW
test should be made in accordance with
Table 6 instead of Table 5.
7.2.2. Sequence Filter
Remove tap screw from upper tap plate and connect
a high-resistance voltmeter across the common of
* The relay should not operate at the lower value of RPW, but
should operate at the higher value.
Table 6
R
PW
TEST - MIN. RESTRAINT TAP
R
1
= C, R
0
= H, T = 4
INSULATING
TRANSFORMER
RATIO
R
PW
*
IN
OHMS
*
The relay should not operate at the lower value of RPW, but
should operate at the higher value.
C
PW
IN
MICROFARADS
4 to 1
6 to 1
800 - 1400
1800 - 3100
0.75
0.33
Sub 3
293B225
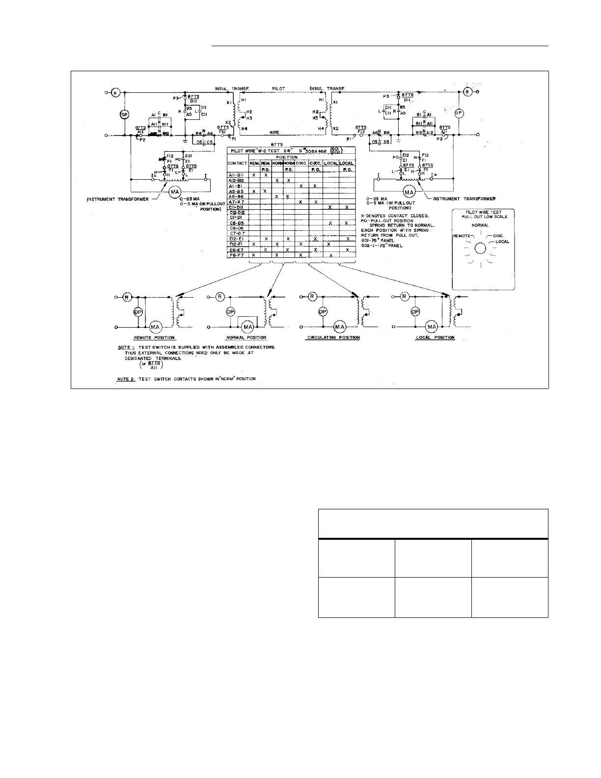
Figure 8:
HCB-1 Relay Test Circuits with S#508A468601 - G02 Type W-2 Switch and S#291B318A09 Milliammeter 0 - 5
-25 ma

Related product manuals