EasyManua.ls Logo

ABB MRP31.0 - Dimensional Drawings

ABB MRP31.0
18 pages
Print Icon
To Next Page IconTo Next Page
To Next Page IconTo Next Page
To Previous Page IconTo Previous Page
To Previous Page IconTo Previous Page
Loading...
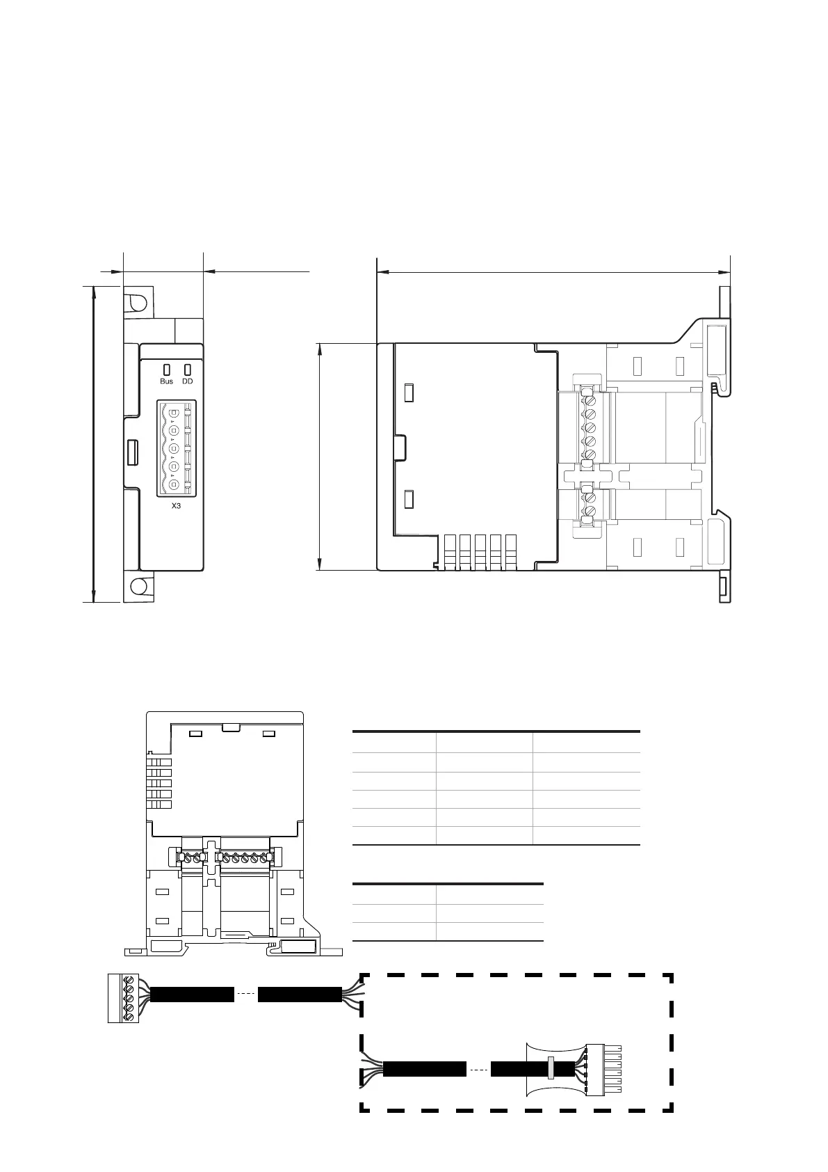
SMK3.0
MRP31 / DNP31
22.5
89
64
99.7
0.886"
3.504"
2.520"
3.925"
1 2
5 4 3 2 1
1
2
3
4
5
1
2
3
4
5
6


X1

X1
X1
Connection cables
Pin Color 
 
 
 Communication
Grey Communication
White Diagnosis
Colors must match
Pin 


Drawer
to UMC100.3
Dimensional drawings
Main device
16 UNIVERSAL MOTOR CONTROLLER UMC100.3 | MRP31.0 MODBUS TCP COMMUNICATION MODULE MANUAL

Related product manuals