EasyManua.ls Logo

ABB PowerCube PB/F - Page 24

ABB PowerCube PB/F
40 pages
Print Icon
To Next Page IconTo Next Page
To Next Page IconTo Next Page
To Previous Page IconTo Previous Page
To Previous Page IconTo Previous Page
Loading...
22
12
3
12
43 44
Fig. 10a Fig. 10b Fig. 10c
Blocchi sugli apparecchi Apparatus locks
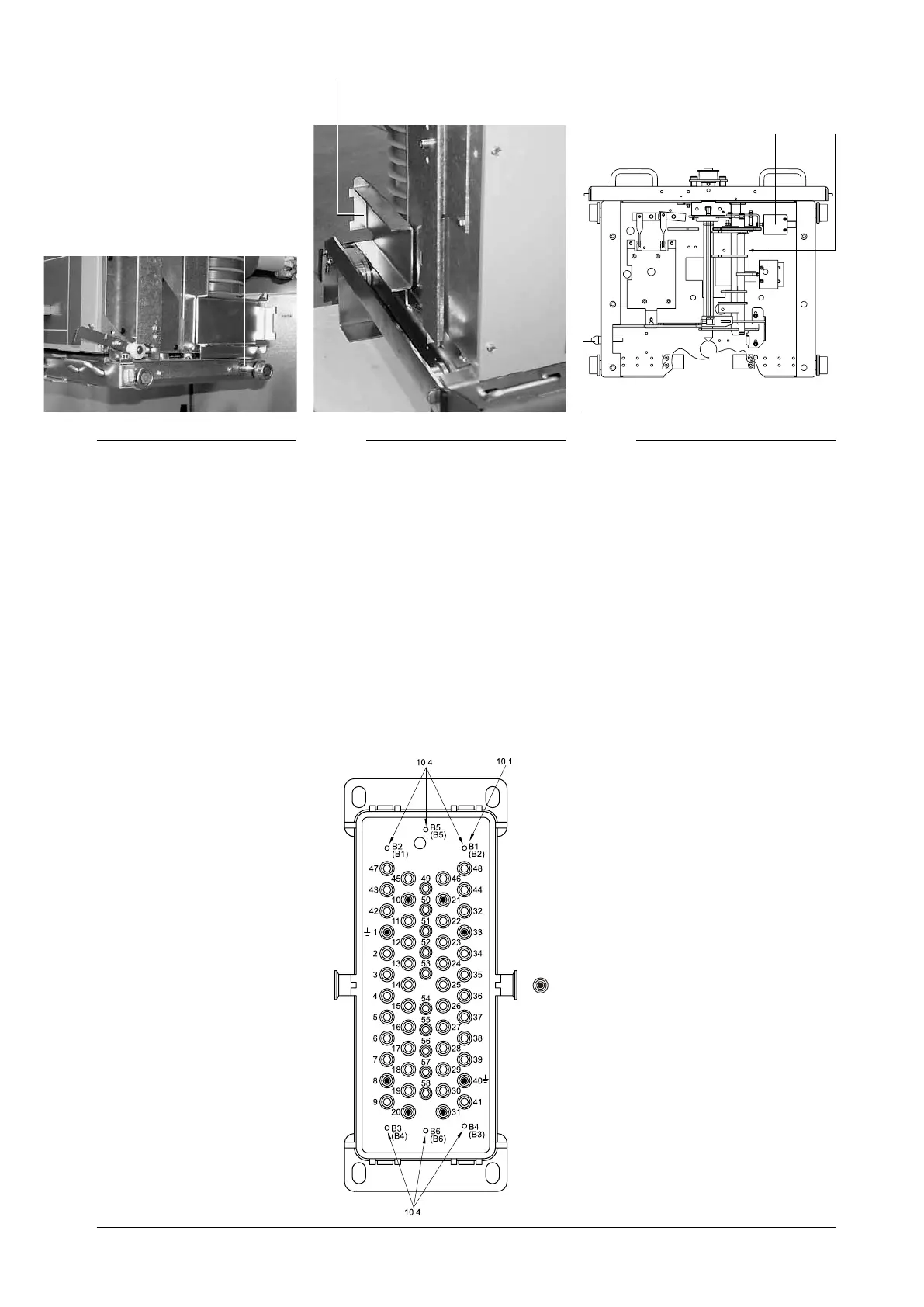
Riferimenti presa:
B1 - B2 - B3 - B4 - B5 - B6.
Riferimenti spina:
(B1) - (B2) - (B3) - (B4) - (B5) - (B6).
Fig. 11
Coding the plug-socket connector of the auxiliary circuits
Coding the plug-socket connector of the auxiliary circuits allows
the apparatus to be electrically combined with its panel. For
example, it only allows apparatus with different rated current or
particular cabling circuits to be combined with the panels they
are destined for.
The operating mechanism cabling coding pins are inserted in
the sockets, and must couple with the corresponding seats of
the plug-socket connector.
Coding the plug-socket connector depends on the final configura-
tion of the switchgear and must be carried out by the customer
by closing the holes not used with the special plugs, according
to the coding enclosed with this manual.
Codifica del connettore spina-presa dei circuiti ausiliari
La codifica del connettore spina-presa dei circuiti ausiliari
permette di abbinare elettricamente gli apparecchi al proprio
pannello. Per esempio, permette di abbinare apparecchi con
correnti nominali diverse o circuiti di cablaggio particolari solo
a pannelli ai quali sono destinati.
I pin di codifica si inseriscono nelle prese di cablaggio di comando
e si devono innestare nelle corrispondenti sedi del connettore
spina-presa.
La codifica del connettore spina-presa dipende dalla configura-
zione finale del quadro e deve essere eseguita a cura del cliente
chiudendo, con il materiale in dotazione, i fori non utilizzati
secondo la codifica allegata al presente manuale.
Socket references:
B1 - B2 - B3 - B4 - B5 - B6.
Plug references:
(B1) - (B2) - (B3) - (B4) - (B5) - (B6).

Related product manuals