EasyManua.ls Logo

ABB REF 541 - 11.LON Inputs and Outputs Via a LON Bus

ABB REF 541
132 pages
Print Icon
To Next Page IconTo Next Page
To Next Page IconTo Next Page
To Previous Page IconTo Previous Page
To Previous Page IconTo Previous Page
Loading...
80
1MRS750527-MUM
Feeder Terminal
Technical Reference Manual, General
REF 54_
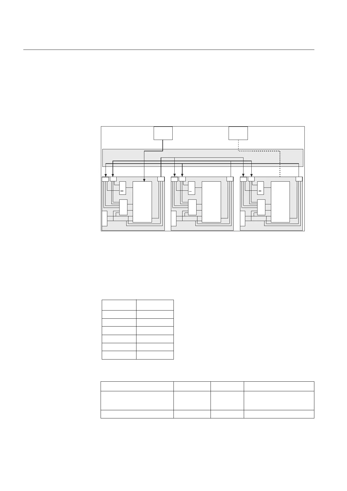
5.1.13.10. LON inputs and outputs via a LON bus
The REF 54_ feeder terminal offers up to 32 freely programmable LON inputs and
outputs on the LON bus. The inputs and outputs use the LonMark Standard network
variable (NV type 83 = SNVT_state) for sending and receiving process data. The
LON inputs and outputs are accessible in the feeder terminal configuration and can
be freely used for different types of data transfer between REF 54_ feeder terminals
and other devices that are able to communicate using the network variable of type
SNVT_state.
lonlog_b
Fig. 5.1.13.10.-1Principle of connecting LON inputs and outputs to logic functions
of the feeder terminal
Each SNVT_state network variable can be used to communicate either an integer
value in the range of 0-65535 or up to 16 Boolean values as a binary coded number.
The type conversion function BOOL2INT is useful for packing and INT2BOOL for
unpacking the binary coded variables. Each bit indicates the state of the Boolean
value with, for example, the following interpretations:
The communication inputs and outputs are seen in the relay configuration tool as
global variables:
1) Where x is a number from 1 to 32. Similar names are used in the LON Network Tool.
0 1
off on
inactive active
disabled enabled
low high
false true
normal alarm
Category Name Datatype Purpose
Communication inputs (sinks)
COMM_INx
1)
COMM_INxIV
1)
UINT
BOOL
Input value
Input invalidity flag, FALSE
indicates a valid state
Communication outputs (sources)
COMM_OUTx
1)
UINT Output value
>1
nv16
nv16 nv16
I/O
REF 54_
>1
nv16
nv16 nv16
I/O
REF 54_
>1
nv16
RE_ 54_
SYS
LON
LON
RE_ 54_
>1
nv16
nv16
nv16
RE_ 54_
nv16 nv16 nv16
>1
nv16nv16
Inter-
locking
Blocking
Open
enable
Close
enable
Close
Open
Reserve
Inter-
locking
Open
enable
Close
enable
Close
Open
Reserve
Inter-
locking
Blocking
Open
enable
Close
enable
Close
Open
Reserve
Select/Execute
Blocking
I/O
I/O
I/O

Table of Contents

Other manuals for ABB REF 541

Related product manuals