EasyManua.ls Logo

ABB REF 541 - Terminal Diagram of REF 541

ABB REF 541
132 pages
Print Icon
To Next Page IconTo Next Page
To Next Page IconTo Next Page
To Previous Page IconTo Previous Page
To Previous Page IconTo Previous Page
Loading...
94
1MRS750527-MUM
Feeder Terminal
Technical Reference Manual, General
REF 54_
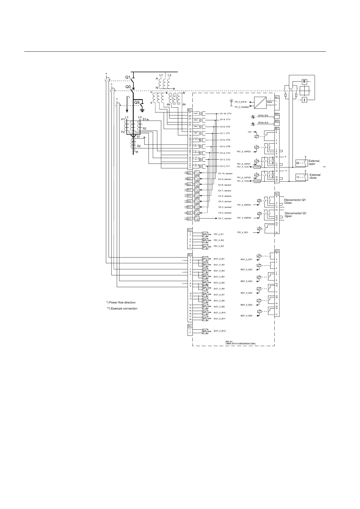
5.2.2. Terminal diagram of REF 541
A050202

Table of Contents

Other manuals for ABB REF 541

Related product manuals