EasyManua.ls Logo

ABB TJC 4 - Dimensional Drawings KOKS XX a XX

ABB TJC 4
47 pages
Print Icon
To Next Page IconTo Next Page
To Next Page IconTo Next Page
To Previous Page IconTo Previous Page
To Previous Page IconTo Previous Page
Loading...
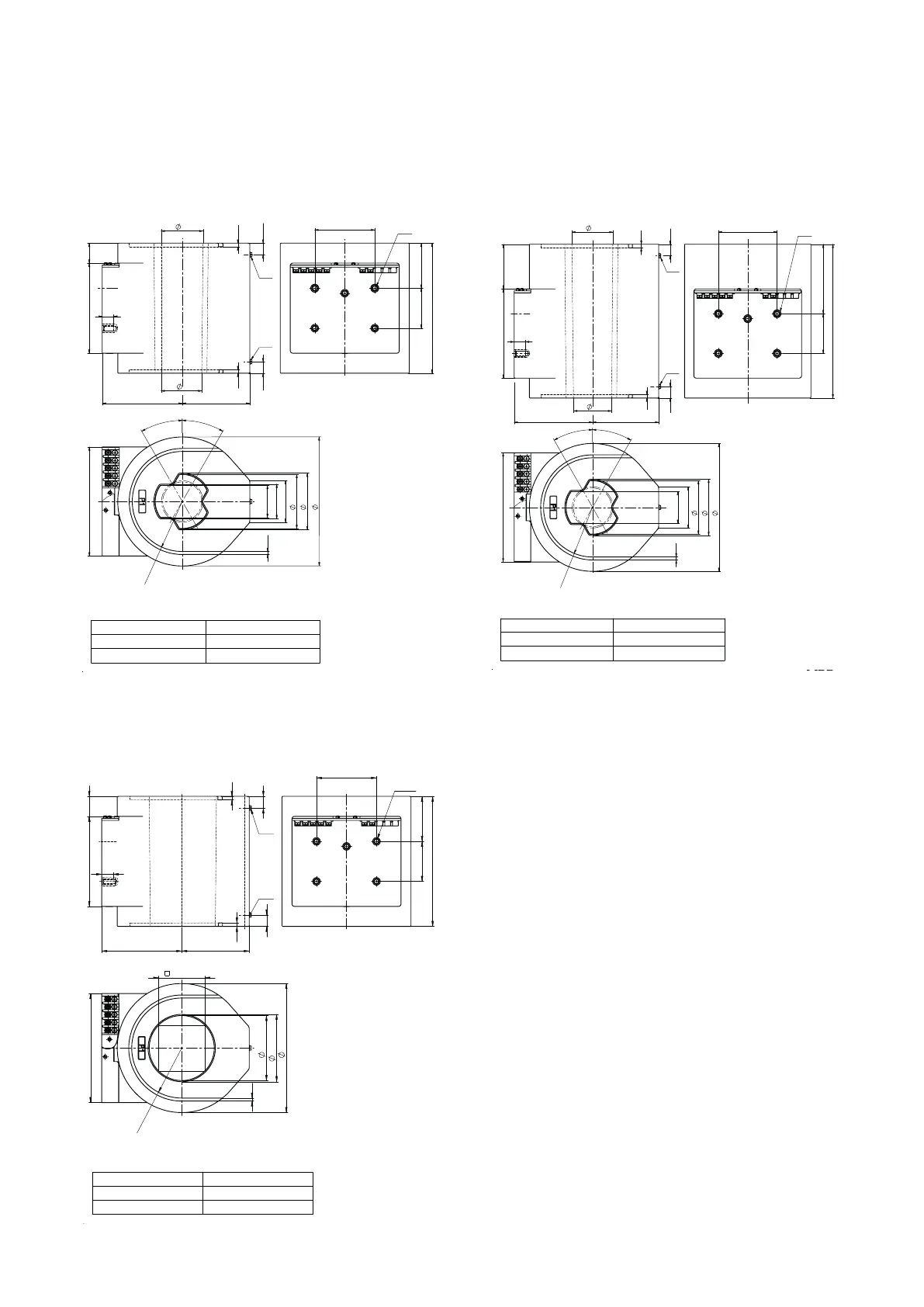
27
258
220
R
100
6
72
114
30°
30°
84
67
110
180
40
23 23
23
160 135
84
78
7 7
M5*
M5*
260
120
90 80
M10
* M5 TERMINAL MUST BE CONNECTED TO THE PRIMARY BAR
Drawing n.
Polarity
44402520
P1 to secondary terminal
44402530
P2 to secondary terminal
KOKS 12A31
KOKS 17,5A31
WEIGHT: 35kg

114
R100
6
220
258
84
67
110
30°
30°
90 180
23
23
23
7
7
84
78
160 135
M5*
M5*
120
80 140
310
M10
* M5 TERMINAL MUST BE CONNECTED TO THE PRIMARY BAR
Drawing n.
Polarity
44402540
P1 to secondary terminal
44402550
P2 to secondary terminal
KOKS 12A41
KOKS 17,5A41
WEIGHT: 42kg

Dimensional Drawings KOKS xx A xx
KOKS 17.5 A 31
KOKS 12 A 31
KOKS 17.5 A 41
KOKS 12 A 41
120
M10
90 80
260
180
40
160 135
7
7
23
23
23
M5*
M5*
218
6
258
130
134,5
R100
91 max.
* M5 TERMINAL MUST BE CONNECTED TO THE PRIMARY BAR
Drawing n.
Polarity
1VL4400076R0101
P1 to secondary terminal
1VL4400076R0102
P2 to secondary terminal
KOKS 12C31
KOKS 17,5C31
WEIGHT: 34kg

KOKS 17.5 C 31
KOKS 12 C 31

Table of Contents

Related product manuals