EasyManua.ls Logo

ABB VD4G-25 - 13. Overall dimensions

ABB VD4G-25
44 pages
Print Icon
To Next Page IconTo Next Page
To Next Page IconTo Next Page
To Previous Page IconTo Previous Page
To Previous Page IconTo Previous Page
Loading...
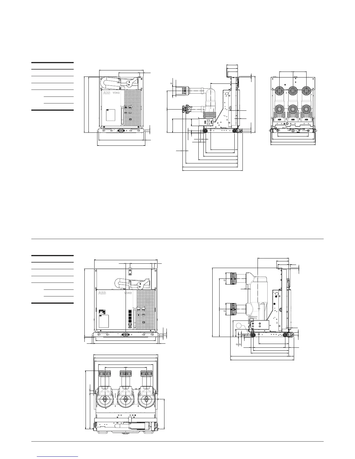
13. Overall dimensions
531
503
19
14
619
492
233 43
626
627
10
64
29
23
123
437
382
34
25
320
573
±1,5
max
610
662
37
21,5
296
100
78
205
±1
260
±1
154
±1
78
121
110
302
4
150
±1
150
±1
341
468
492
500
Type
U
I
I System Source
I Generator Source I Out-of-Phase
O.M
Cubible
VD4G/P-25
15 kV
1250A
25 kA
16/ 16 kA
12.5 kA EL
UNIGEAR ZS1 W=650
636
44,5 220 25
19
12,5
14
605
653
14
4 689
320 25
302
359
590
382
52
21,5
19,5
76
165
310 281
698
119 119
10
37
110
123
642
23
314
20
26
16
4
11
210 210
29 359
590
302
550
626
640
650
C.B Type
U
In
Isc/ Iscg/ Id
O.M
Execution
VD4G-40
15 kV
2000A
40 kA/ 25kA/ 20kA
EL1 Twin
Unigear
Powercube
Fixed circuit-breakers
Fixed circuit-breakers
VD4G/P-25
TN 
Ur  kV
Ir  A
Isc
 kA
 kA
 kA
VD4G-40
TN 
Ur  kV
Ir  A
Isc
 kA
 kA
 kA
MEDIUM VOLTAGE PRODUCTS
39

Related product manuals