EasyManua.ls Logo

ABB VD4G-25 - Page 42

ABB VD4G-25
44 pages
Print Icon
To Next Page IconTo Next Page
To Next Page IconTo Next Page
To Previous Page IconTo Previous Page
To Previous Page IconTo Previous Page
Loading...
450
248
96 16
33 227,5 28,5
49 28,5
435
171 16
56 30
24 402
24
150 150
451
205 217,5
77,5
56
406
475
32
95
250
417,5
0,8
45 109
52 52
M12 DEEP.25
22
22
M10 DEEP.18
45
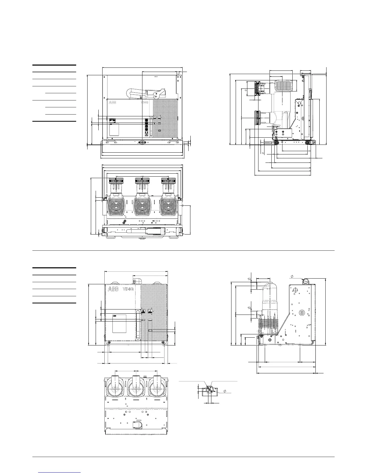
Type
U
In
Isc
O.M
Version For
VD4G-25
15 kV
1250A
31.5kA
EL
Fixed
Installation
842
880
853
19
12,5
25 362
842
213 16
56 30
731 4
280
±1
21,5
19,5
320 25
592
416
34 382
359
302
111
95
310
±1
678
165
±1
89
29
52
743
130
240
118
10 733
478
39
76
150
553
±1,5
4
275 275
836
850
806
591
357 31
750
4
303
C.B Type
U
In
I System Source
I Generator Source I Out-of-Phase
O.M
Cubicle
VD4G/P-40
15 kV
3150A
40kA 25kA 20kA
EL
UNIGEAR ZS1
W=1000
VD4G/P-40
4000A
UNIGEAR ZS1
W=1000
Withdrawable circuit-breakers
Withdrawable circuit-breakers
VD4G/P-40
TN 
Ur  kV
Ir
 A
 A
Isc
 kA
 kA
 kA
VD4G-25
TN 
Ur  kV
Ir  A
Isc  kA
13. Overall dimensions
42
VD4G INSTALLATION AND OPERATING INSTRUCTIONS

Related product manuals