EasyManua.ls Logo

ACP Menumaster DEC18E2 - DEC11 E2 CPI Schematic Diagram

ACP Menumaster DEC18E2
48 pages
Print Icon
To Next Page IconTo Next Page
To Next Page IconTo Next Page
To Previous Page IconTo Previous Page
To Previous Page IconTo Previous Page
Loading...
38
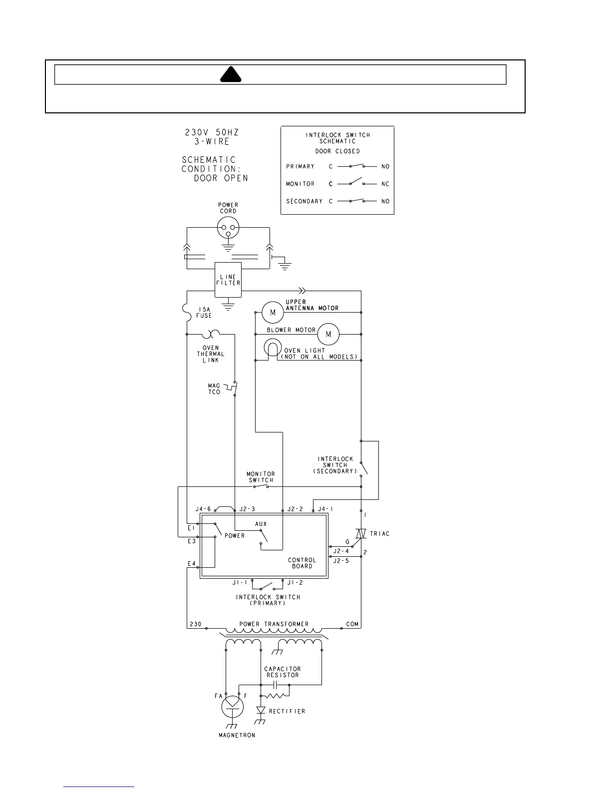
230V 50HZ
3-WIRE
SCHEMATIC
CONDITION:
DOOR OPEN
CC
C NOSECONDARY
DOOR CLOSED
INTERLOCK SWITCH
SCHEMATIC
NCMONITOR
NOCPRIMARY
FA F
RECTIFIER
CAPACITOR
RESISTOR
M
BLOWER MOTOR
COM
POWER
AUX
CONTROL
BOARD
MONITOR
SWITCH
MAGNETRON
POWER TRANSFORMER230
M
OVEN LIGHT
(NOT ON ALL MODELS)
INTERLOCK
SWITCH
(SECONDARY)
UPPER
ANTENNA MOTOR
UPPER
ANTENNA MOTOR
MAG
TCO
15A
FUSE
LINE
FILTER
INTERLOCK SWITCH
(PRIMARY)
OVEN
THERMAL
LINK
POWER
CORD
J1-2
E4
J4-6 J2-3 J2-2
E1
J4-1
J1-1
E3
G
TRIAC
2
J2-5
J2-4
1
!
WARNING
To avoid risk of electrical shock, personal injury or death, disconnect power to oven and discharge capacitor
before servicing, unless testing requires power.
Schematic Diagram
DEC11E2 Sample w/ CPI Control Current Production started at S/N 0911102348

Related product manuals