EasyManua.ls Logo

ActronAir EVA290T - Unit Dimensions and Clearances; Eva290 T; Eva330 T

ActronAir EVA290T
24 pages
Print Icon
To Next Page IconTo Next Page
To Next Page IconTo Next Page
To Previous Page IconTo Previous Page
To Previous Page IconTo Previous Page
Loading...
6
Installation and Commissioning Guide - Split Ducted Variable Capacity Commercial Indoor Unit
Doc. No. 0525 - 068 Ver. 3 201104
Installation and Commissioning Guide
Variable Capacity Commercial
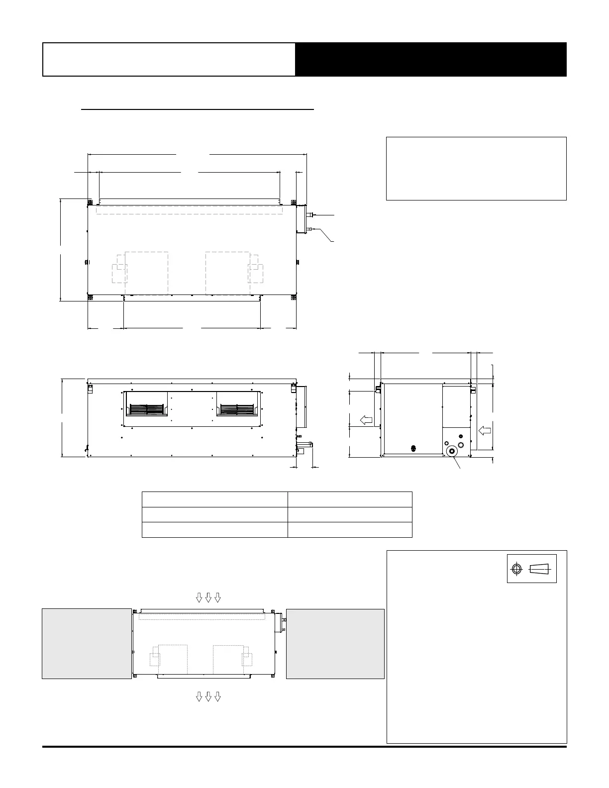
. Unit Dimensions and Clearances
. EVAT / EVAT
OVERALL NOMINAL DIMENSION (H x W x D)
= 628 x 1754 x 820
SUPPLY DUCT (H x W) = 282 x 1098
RETURN DUCT = 533 x 1451
DRAIN CONNECTION = DN 25mm PN12
INDOOR COIL
GAS PIPES
Ø 28.58 mm (1-1/8")
SWAGED
LIQUID PIPE
Ø 15.88 mm (5/8")
SWAGED
INDOOR
FAN
PRIMARY DRAIN
DN 25mm PN12
SUPPLY
AIR
628 O/A
131
282
246
100
49
722
49
38
533
57
288
1098 288
820 O/A
93
1754 O/A
1451 130
INDOOR
FAN
ERQ290T-330T-B
TOP VIEW
FRONT VIEW SIDE VIEW
Unit Model Number Unit Weight (kg)
EVA290T 122
EVA330T 126
NOTES:
1. Do not scale drawing. All
dimensions are in mm unless specified.
2. Service Clearances given are suggested
minimum based on the condition that the
spaces around the units are free from any
obstructions and a walkway passage of
1000mm between the units or between
the unit and the outside perimeter is
available.
3. Minimum service access clearances are
responsibilities of the installer, ActronAir
will not be held liable for any extra
charges incurred due to lack of access.
THIRD ANGLE
PROJECTION
INDOOR COIL
INDOOR
FAN
INDOOR
FAN
ERQ290T-330T-B- Front
DUCT WORK
DUCT WORK
HEIGHT CLEARANCE = DUCT WORK
1200 mm
INDOOR FAN
AND
INDOOR COIL
SERVICE CLEARANCE
TOP VIEW
1200 mm
INDOOR FAN / COIL
AND
ELECTRICAL CONTROL
SERVICE CLEARANCE
Minimum Service Access Areas and Airflow Clearances

Related product manuals