EasyManua.ls Logo

Addison PCA Series - 380;415-3-50 Wiring Diagram

Default Icon
24 pages
Print Icon
To Next Page IconTo Next Page
To Next Page IconTo Next Page
To Previous Page IconTo Previous Page
To Previous Page IconTo Previous Page
Loading...
16
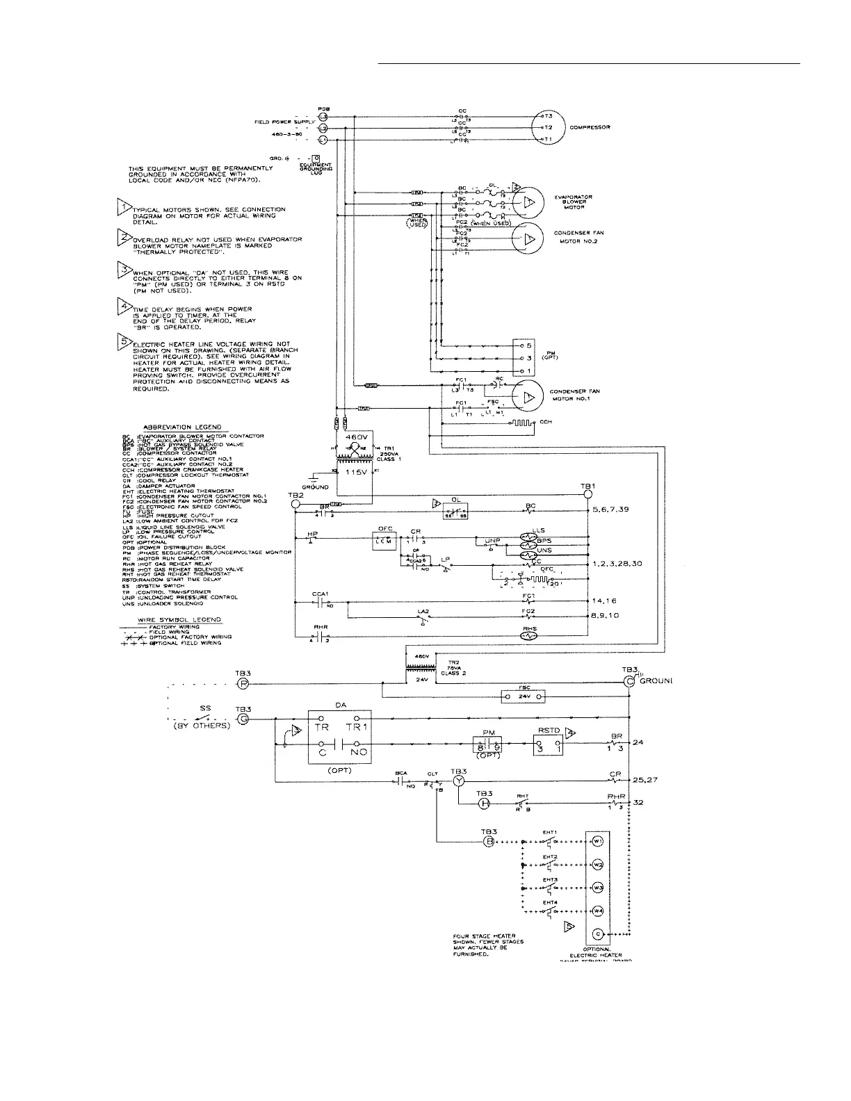
TYPICAL 380/415-3-50 WIRING DIAGRAM

Related product manuals