EasyManua.ls Logo

Addison PCA Series - Page 8

Default Icon
24 pages
Print Icon
To Next Page IconTo Next Page
To Next Page IconTo Next Page
To Previous Page IconTo Previous Page
To Previous Page IconTo Previous Page
Loading...
7
SEQUENCES OF OPERATION CONTINUED
Application
Addison’s patented Reheat Plus adds a subcooling
coil to the Addison Hot Gas Reheat System. Its use is
especially applicable to 100% Outdoor Air systems, or to
recirculated air systems having high fresh air
requirements of over 20-25%. The subcooling coil is
active under all conditions of operation when the
compressor is running, and typically provides 4°-6° of
additional reheat at 350-400 CFM/Ton and 8°-12° of
additional reheat at 200 CFM/Ton. The leaving air dew
point will be lower then without the subcooling coil, and
the total refrigeration capacity and efficiency (EER) will
be higher
Typically, each two degrees of subcooling will result in
increased evaporator capacity of ½%. Thus, a typical
35°-40° of subcooling will result in increased unit
capacity of approximately 10%, with a corresponding
EER increase of over 1.0 BTU/Watt.
The use of Reheat Plus™ often allows the designer to
specify a smaller compressor to do a given job, or he
can accept the added refrigeration capacity and drive the
leaving dew point lower. In either case, Reheat Plus™
will give the optimum in leaving air conditions for a given
unit size, and allow them to be controlled more precisely
than ever before, at lowest operating cost.
See the following for controls and further description of
Addison’s Hot Gas Reheat System.
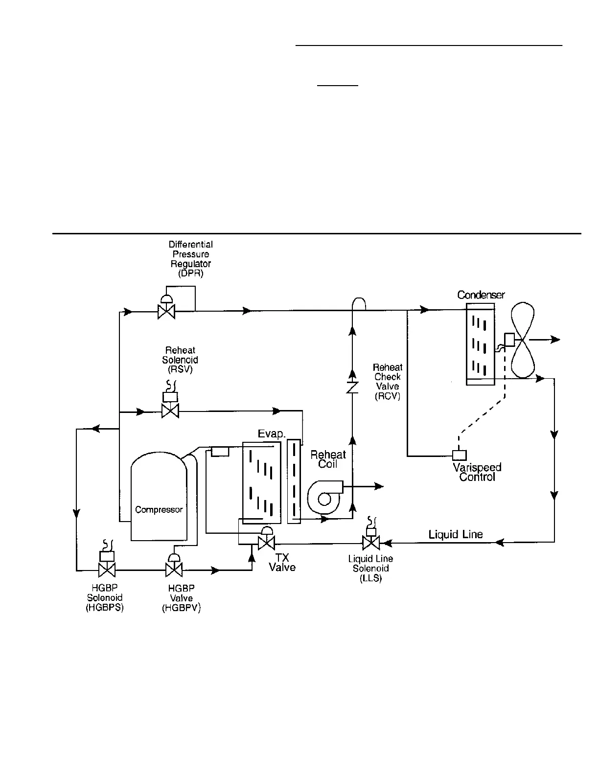
REHEAT SYSTEMS
Application
Hot gas reheat is a method used to maintain a specific
humidity level within the conditioned space. By installing
a one row coil equal to the evaporator face area down
stream of the evaporator the return air is cooled,
dehumidified and then reheated. By reheating the supply
air stream the relative humidity is reduced.
On 100% outside air applications the hot gas reheat will
provide leaving air temperature control. If not otherwise
specified (see Controls), control of the hot gas reheat is
via a factory mounted leaving air thermostat. The unit
employs continuous blower operation and the
compressor operation is controlled by an ambient
temperature thermostat.

Related product manuals