EasyManua.ls Logo

ADF NMV Series - Flue Installation; Flue Outlet Positions

ADF NMV Series
36 pages
Print Icon
To Next Page IconTo Next Page
To Next Page IconTo Next Page
To Previous Page IconTo Previous Page
To Previous Page IconTo Previous Page
Loading...
24
Flue Installation
Flue type: Triple skin flue, 200mm/250mm/300mm or 8”/10”/12”. The Active 200mm flue must be a
tight fit into the heater collar. Double casing outer skins 250mm and 300mm begin 25mm above heater
to allow air flow into these outer casings. The cavity must be ventilated to allow this air flow.
The heater must have its own dedicated flue. The active flue must be 8” for the entire length of the
flue, and always less than 45 degrees from the vertical.
Replacement room air from outside equivalent to 160cm2 must be supplied into the room.
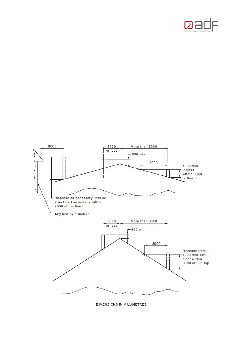
Flue Outlet Positions
The Flue terminal must meet the minimum height and external clearances for the flue, according to
AS/NZ 2918:2018, see the diagram shown below.
NOTE: Flue exit MUST be also be as high as any nearby structure within a 6m Radius. ( AS 2918:2018 )