EasyManua.ls Logo

ADS EOS - Product Dimensions; Physical Size and Measurements

Default Icon
32 pages
Print Icon
To Next Page IconTo Next Page
To Next Page IconTo Next Page
To Previous Page IconTo Previous Page
To Previous Page IconTo Previous Page
Loading...
ADS
EOS
Extraoral
Suction
System
,
Instructions
For
Use
and
Installation
ADS
Dental
System
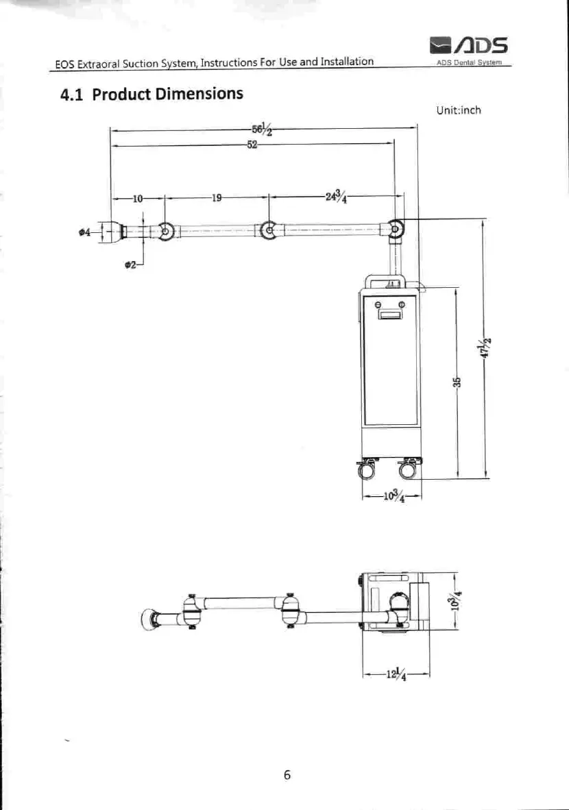
4.1
Product
Dimensions
Unit
:
inch
-5612
-52
-10
-19
-4772
35
L
6