EasyManua.ls Logo

AEG FSE83806P - Installation Procedures

AEG FSE83806P
28 pages
Print Icon
To Next Page IconTo Next Page
To Next Page IconTo Next Page
To Previous Page IconTo Previous Page
To Previous Page IconTo Previous Page
Loading...
Electrical connection
1)
Voltage (V) 200 - 240
Frequency (Hz) 50 / 60
Wattage (W) 1550-2200
Water supply pressure bar (minimum and maximum) 0.5 - 8
kPa (minimum and maximum) 50 - 800
Water supply
Cold water or hot water
2)
max 60 °C
Capacity Place settings 14
1)
Refer to the rating plate for other values.
2)
If the hot water comes from alternative source of energy (e.g. solar panels), use the hot water supply to
decrease energy consumption.
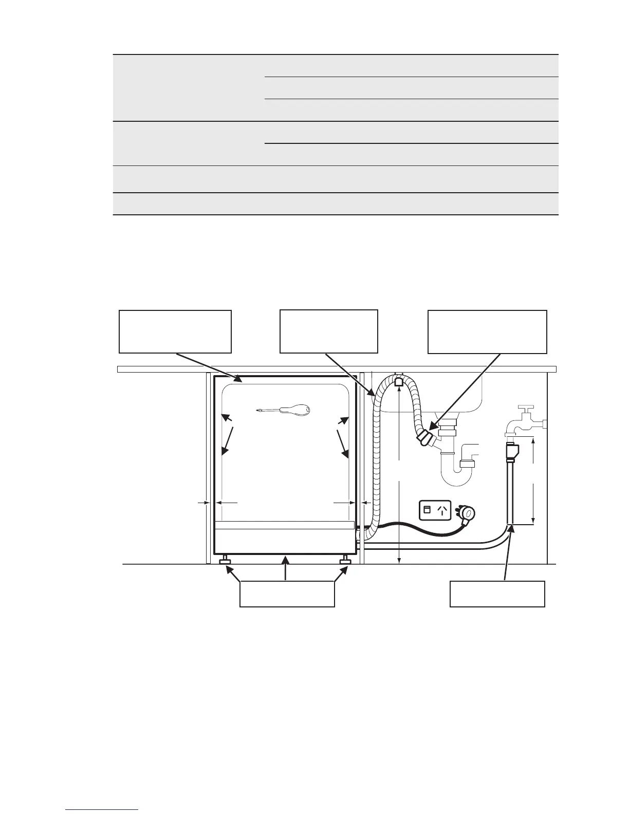
14. INSTALLATION
If floor is not level, adjust
levelling legs to suit
The hose should not be
extended by more than
2 metres or water pump-
out
problems may occur
Removeentire plastic
membranefrom sink trap
spigot & fit drain hose to spigot
with clamp
Thereshould be a minimum
2mm gap between the top of
the dishwasher and
underside of bench top
Gap on both sides should be
equal, & no greater than
5 mm per side.
Secure dishwasher with
brackets or screws provided
Min. 400 mm straight
section
600mm max
300mm min
400mm
min
DISHWASHER
SINK
POWER OUTLET
Install the appliance under a kitchen
counter.
Put the appliance adjacent to a water tap
and a water drain.
For the venting of the appliance only
water hoses and mains cable openings
are necessary.
14.1 Adjusting the height of
the appliance
1. Remove the adjustable plinth.
www.aeg.com22

Related product manuals