EasyManua.ls Logo

AERMEC AN 150 A - Page 42

AERMEC AN 150 A
68 pages
Print Icon
To Next Page IconTo Next Page
To Next Page IconTo Next Page
To Previous Page IconTo Previous Page
To Previous Page IconTo Previous Page
Loading...
42
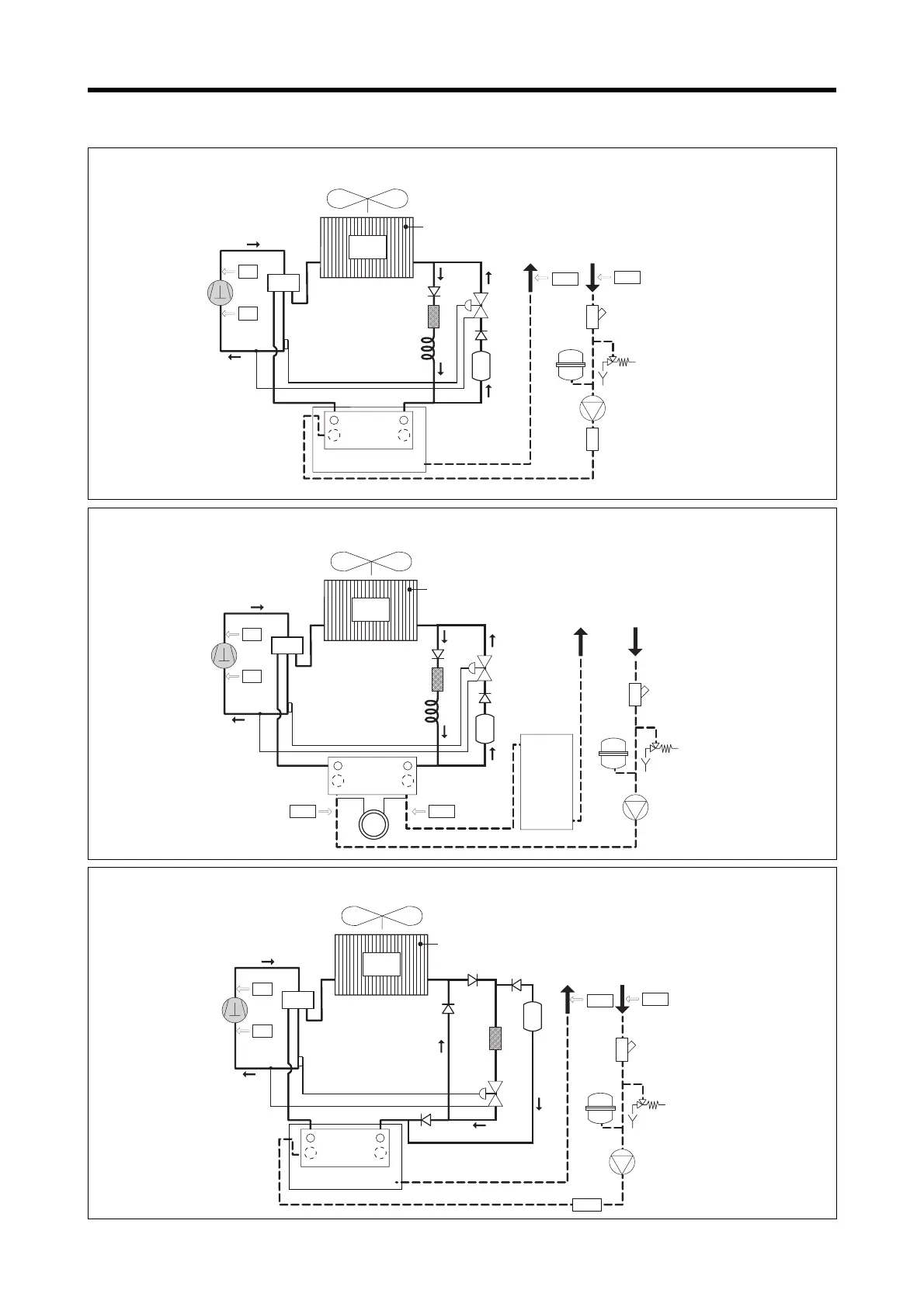
MP
VE
VS
FM
V
CP
EV
AP
CN
BP
SS
VIC
VU
AL
VU
VT
VU
FD
VU
SIW
SUW
ACL
FL
AN 020 HA - 041 HA
LAY-OUT CIRCUITO FRIGORIFERO E DISPOSITIVI DI CONTROLLO
LAY-OUT OF CHILLER CIRCUIT AND CONTROL DEVICES
ACL
MP
VE
VS
FM
V
CP
PD
EV
FD
AP
CN
BP
CL
SUWSIW
SS
VIC
VU
SL
VU
VT
AN 041 HA - 090 HA solo con R22 • only with R22
V
CP
EV
FD
AP
CN
BP
CL
SS
VIC
VU
AL
VU
VT
ACL
FL
MP
VE
VS
FM
SIW
SUW
AN 020 HA - 030 HA solo con R22 • only with R22

Related product manuals