EasyManua.ls Logo

AERMEC NRK 0150 - NRK Version 01-08 Connections

AERMEC NRK 0150
36 pages
Print Icon
To Next Page IconTo Next Page
To Next Page IconTo Next Page
To Previous Page IconTo Previous Page
To Previous Page IconTo Previous Page
Loading...
12 INRKIY_14.02_5167555_00
NRK0200-0700 HA-HE
EN
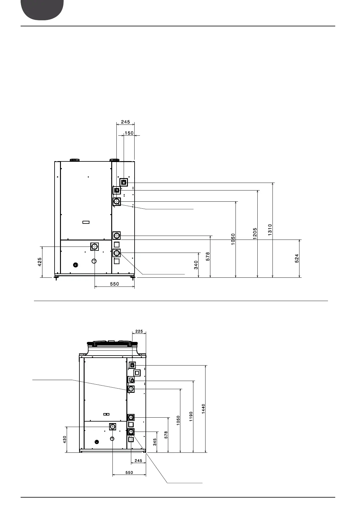
NRK_0200 ÷ 330_HE[01÷08]
NRK_0350 ÷ 700_HA_HE[01÷08]
NRK Versione [01÷08]
OUT [01÷08] Ø 2”1/2
OUT [01÷08] Ø 2”1/2
IN [01÷08] Ø 2”1/2
IN [01÷08] Ø 2”1/2
NRK0300HA
NRK0300-0700HA

Related product manuals