EasyManua.ls Logo

AERMEC NRL 0750 - Page 18

AERMEC NRL 0750
56 pages
Print Icon
To Next Page IconTo Next Page
To Next Page IconTo Next Page
To Previous Page IconTo Previous Page
To Previous Page IconTo Previous Page
Loading...
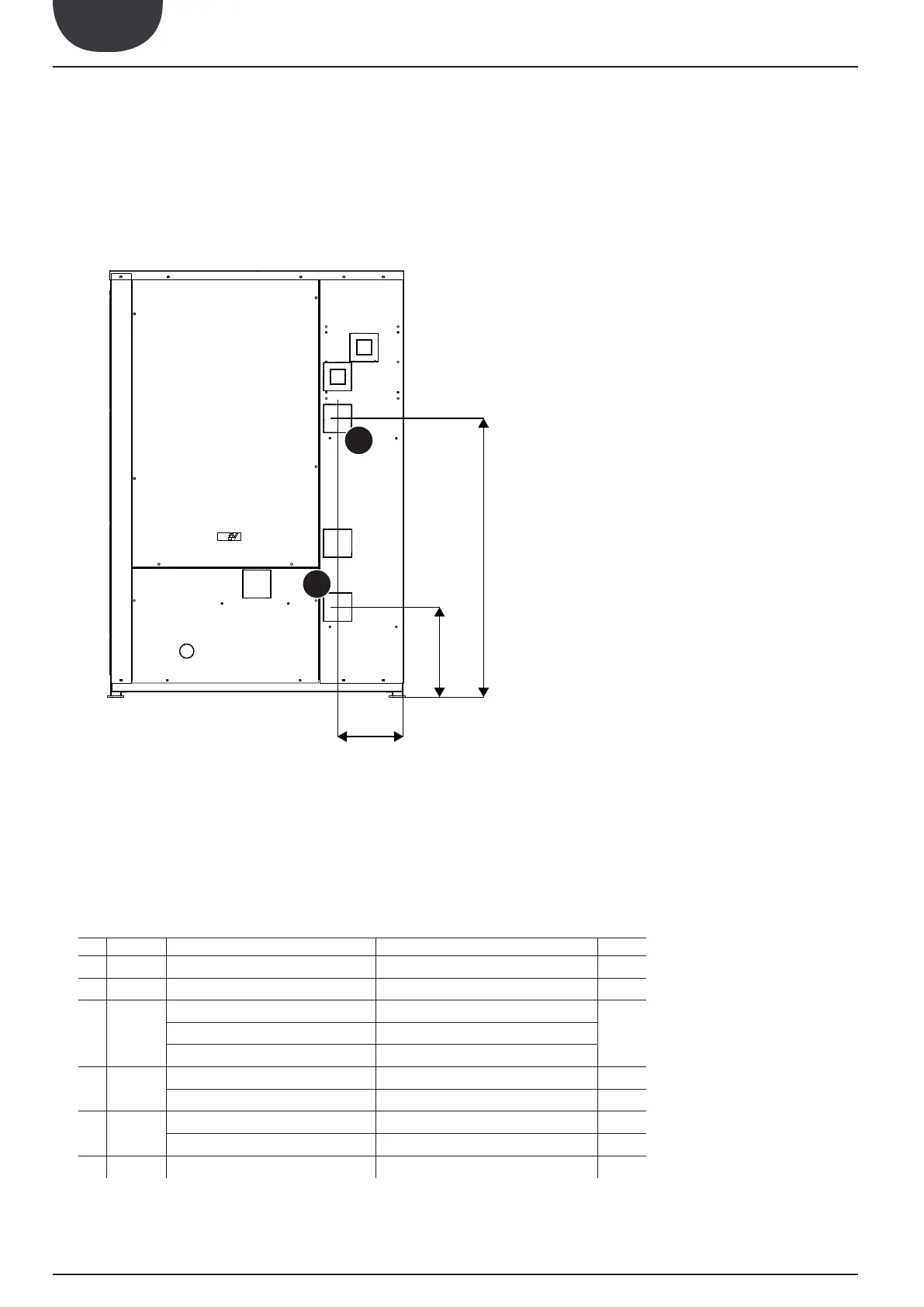
18 18.01._5280107_02
NRL 0280-0750 °-L / A-E
EN
Versione “A
C
F
248
340
1050
VERSION WITH BUFFER TANK "01-02-03-04-09"

  VERSIONE Ø
A IN Version with pump "P1-P2-P3-P4" 2"½
B IN Version standard "00" 2"½
C 
Version standard "00"
2"½Versioni with pumps "P1-P2-P3-P4"
 "01-02-03-04-05-06-07-08-09-10"
D IN
Version with desuperheater D 1"½
Version with total recovery T 2"½
E 
Version with desuperheater D 1"½
Version with total recovery T 2"½
F
IN
 "01-02-03-04-05-06-07-08-09-10" 2"½

Related product manuals