EasyManua.ls Logo

AERMEC RePuro Series - Compatibilità Tra Pannello Comandi E Scatole da Incasso

AERMEC RePuro Series
Print Icon
To Next Page IconTo Next Page
To Next Page IconTo Next Page
To Previous Page IconTo Previous Page
To Previous Page IconTo Previous Page
Loading...
8
4238010_00 - 0912
Wall
mounted
Wall
mounted
82,5mm
26mm
>10mm
Ø40mm
Type
503E
Type
503E
Type
502E
Type
502E
Type
M20
Type
M20
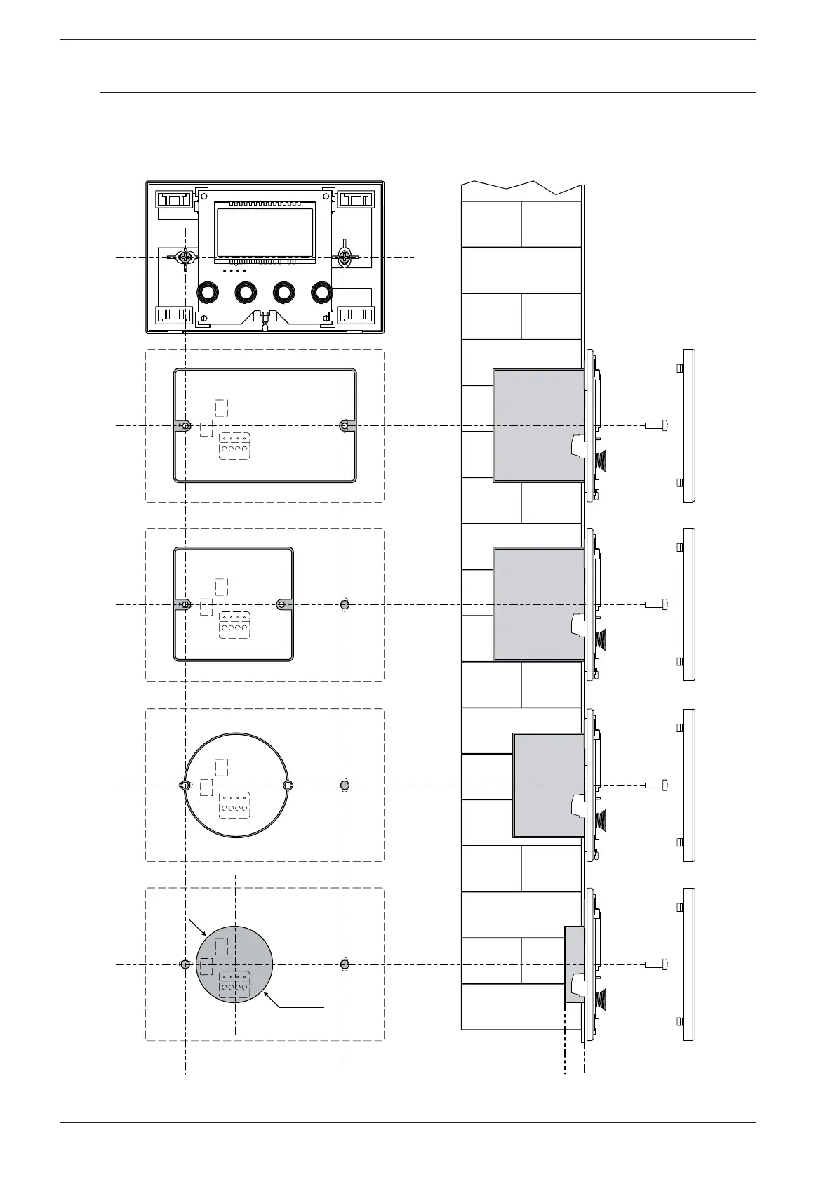
3.2. COMPATIBILITÀ TRA PANNELLO COMANDI E SCATOLE DA INCASSO
Il pannello a muro può essere fissato su di una scatola da incasso di varie tipologie; di seguito viene riportato uno schema che
riassume la compatibilità tra scatole da incasso e pannello comandi;

Other manuals for AERMEC RePuro Series

Related product manuals