EasyManua.ls Logo

AERMEC TS 63 - Page 40

AERMEC TS 63
Print Icon
To Next Page IconTo Next Page
To Next Page IconTo Next Page
To Previous Page IconTo Previous Page
To Previous Page IconTo Previous Page
Loading...
40
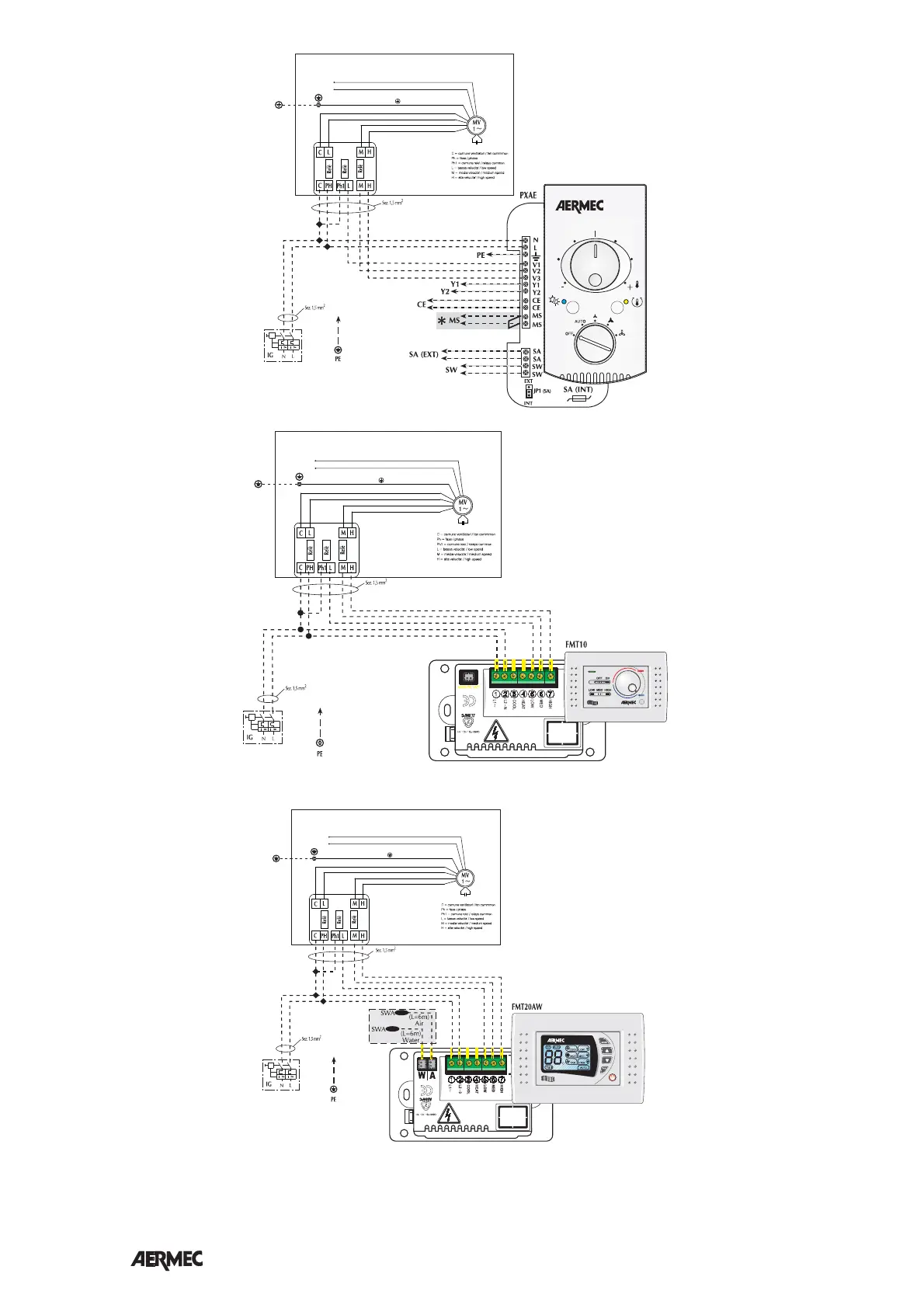
Gli schemi elettrici sono soggetti ad un continuo aggiornamento, è obbligatorio quindi fare riferimento a quelli a bordo macchina.
All wiring diagrams are constantly updated. Please refer to the ones supplied with the unit.
Nos schémas électriques étant constamment mis à jour, il faut absolument se référer à ceux fournis à bord de nos appareils.
Die Schaltpläne werden ständig aktualisiert, deswegen muss man sich stets auf das mit dem Gerät gelieferte Schaltschema beziehen.
El cableado de las máquinas es sometido a actualizaciones constantes. Por favor, para cada unidad hagan referencia a los esquemas suministrados con la misma.
YG ( )
BI ( N )
RO ( V1 )
BL ( V3 )
NE ( V5 )
GR ( V2 )
MA ( V4 )
PE
TS_5V
230V ~ 50Hz
YG ( )
BI ( N )
RO ( V1 )
BL ( V3 )
NE ( V5 )
GR ( V2 )
MA ( V4 )
PE
TS_5V
230V ~ 50Hz
YG ( )
BI ( N )
RO ( V1 )
BL ( V3 )
NE ( V5 )
GR ( V2 )
MA ( V4 )
PE
TS_5V
230V ~ 50Hz
TS 63 5V
TS 74 5V
TS 76 5V
TS 63 5V
TS 74 5V
TS 76 5V
TS 63 5V
TS 74 5V
TS 76 5V

Table of Contents

Related product manuals