EasyManua.ls Logo

Aircommand HERON 2.2 - Power Supply and System Charging; Flare Joint Techniques; Refrigerant System Charging

Aircommand HERON 2.2
10 pages
Print Icon
To Next Page IconTo Next Page
To Next Page IconTo Next Page
To Previous Page IconTo Previous Page
To Previous Page IconTo Previous Page
Loading...
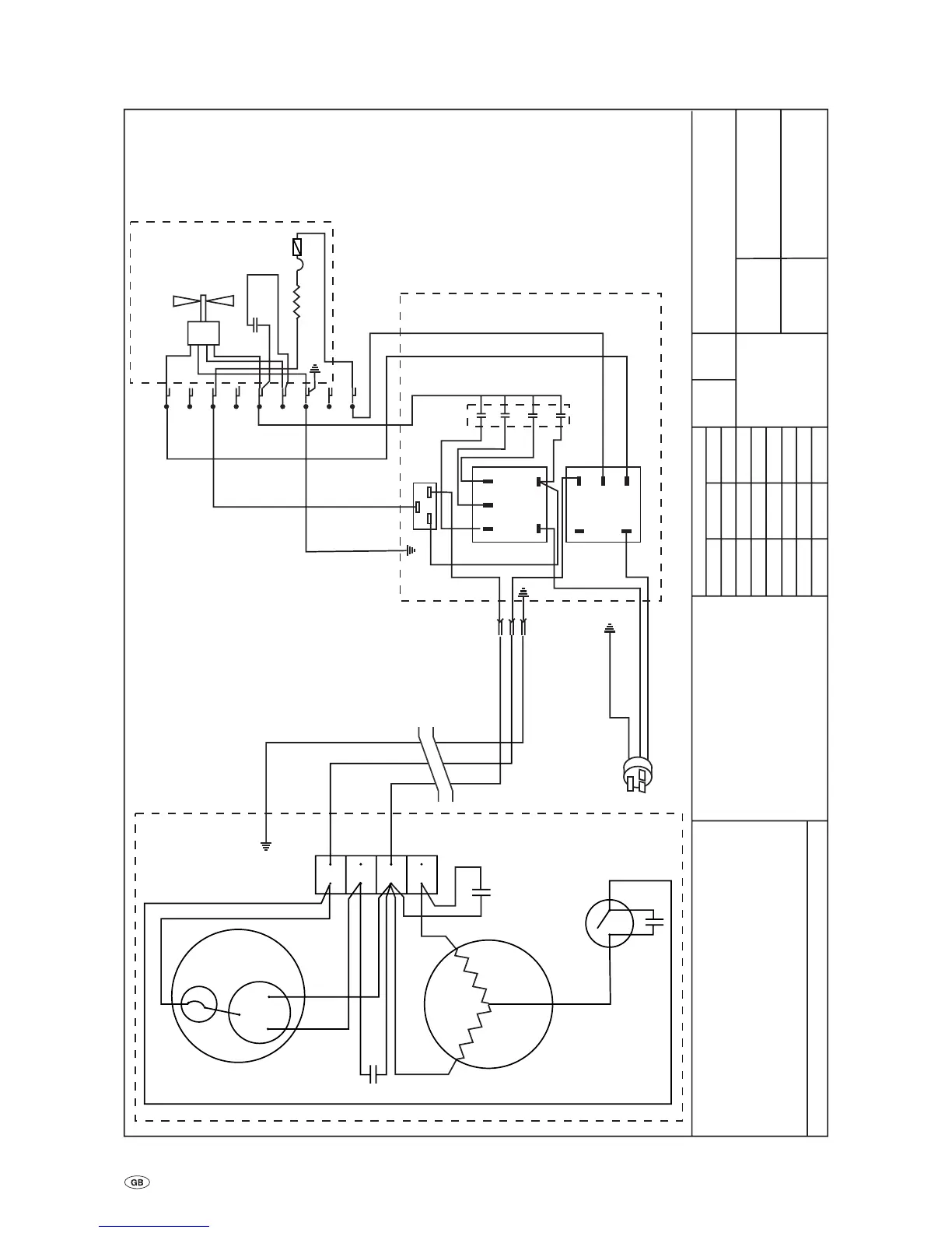
Y/G
BROWN
AIR HANDLER
FACIA CONTROL BOX
SPEED CONTROL
CAPACITOR
BLUE
BLUE
BLUE
H
C
L
E
E
O/L
R
C
R
YELLOW
YELLOW
YELLOW
BLUE
BROWN
FAN MOTOR
THERMAL SWITCH
2.5 mfd
4.5 mfd
BLACK
20 mfd
COMPRESSOR
E
12
346
1
2
2
3
4
4
6
6
1
2
3
4
5
6
7
8
9
3.7+5+.8+.33 mfd
BLUE
BLUE
BROWN
GREY
1.5 mfd
1500W
ORANGE
ORANGE
GREY
WHITE
BLACK
RED
PURPLE
YELLOW
BROWN
G/Y
General Notes
All Dimensions in mm unless otherwise noted
Aircommand Australia Pty Ltd
954-956 Port Road
Albert Park
SA 5034
Phone: 61 8 8445 2877
Fax: 61 8 8243 0628
ABN 79 007 592 234
Copyright 1999 Aircommand Australia P/L
REVISION
Change Was Date
Checked Scale Description
WIRING DIAGRAM
HERON 2.2 MK2
DWH
WIRING DIAGS
07/06/99
DateTolerance
Drawn by Directory
XX
XX.X
XX.XX
ANGLES
+1.0
+0.2
+0.02
+1
_
_
_
_
°
9

Other manuals for Aircommand HERON 2.2

Related product manuals