EasyManua.ls Logo

Airelec Basic Pro - Page 5

Airelec Basic Pro
112 pages
Print Icon
To Next Page IconTo Next Page
To Next Page IconTo Next Page
To Previous Page IconTo Previous Page
To Previous Page IconTo Previous Page
Loading...
1 - RACCORDEMENT ELECTRIQUE
- L’installation doit être conforme aux normes en vigueur dans le pays d’installation
(NFC 15-100 pour la France).
- Si l’appareil est installé en France, il faut couper le câble à 5cm de la prise et
effectuer le raccordement dans la boîte mural.
- Vérier le serrage correct des ls dans les bornes de la boîte de raccordement
murale.
Veuillez lire attentivement les règles de sécurités jointes
à cette notice avant le raccordement de l’appareil.
!
5.
c
c
2
2
500 => 1250W
B
c
150
mini
mini
150
80
1
A
c
A
A
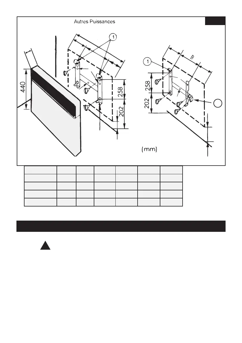
Fig. D
Puissances 500W 750W 1000W 1500W 2000W 2500W
Intensités 2,2A 3,3A 4,3A 6,5A 8,7A 10,9A
Lg Appareil 340 340 420 580 740 900
B 128 128 208 178 320 405
C 106 106 106 201 210 248

Related product manuals