EasyManua.ls Logo

Airstream Interstate 2019 - Electrical Diagrams

Airstream Interstate 2019
128 pages
Print Icon
To Next Page IconTo Next Page
To Next Page IconTo Next Page
To Previous Page IconTo Previous Page
To Previous Page IconTo Previous Page
Loading...
Maintenance
2019 Interstate 9-17
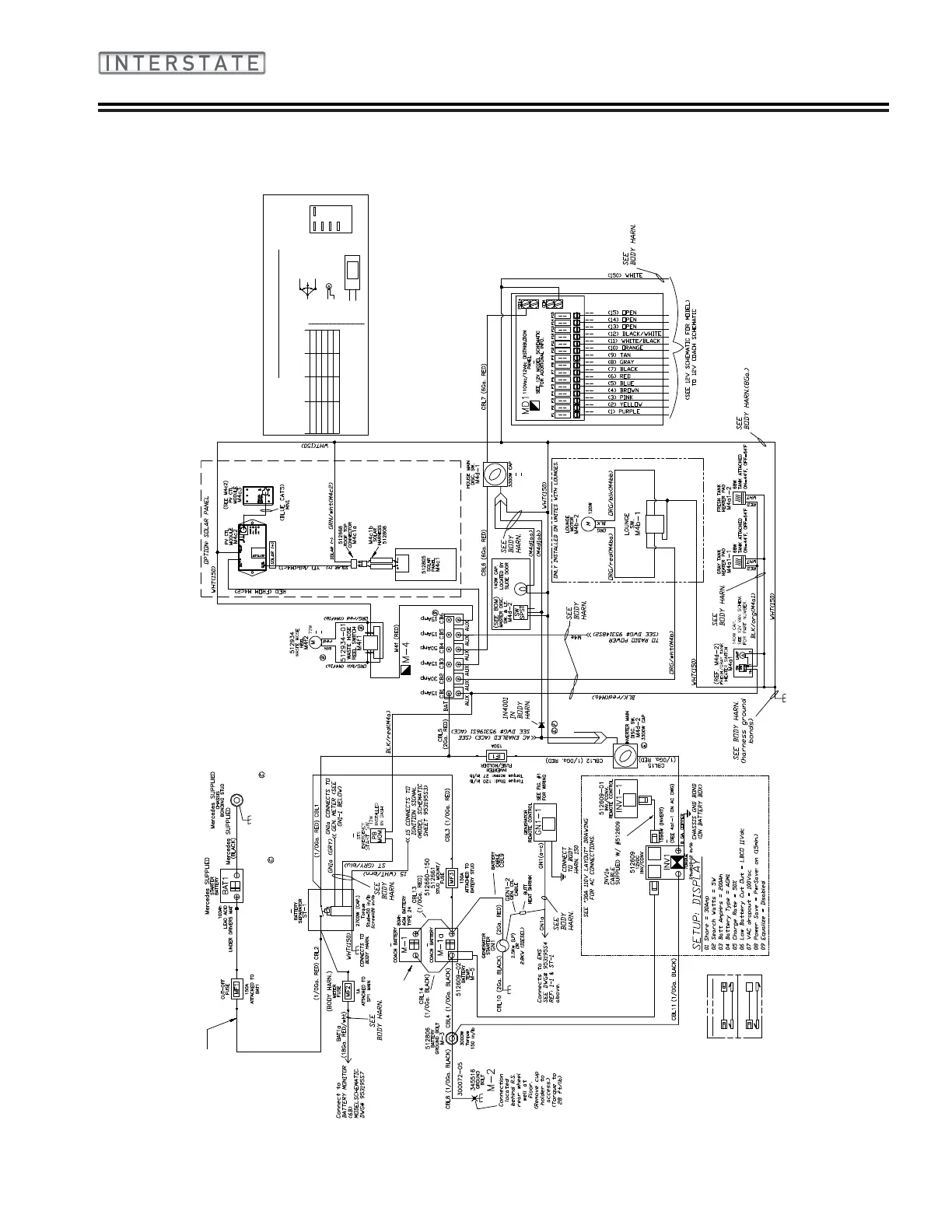
Electrical Diagrams
12-Volt Main Schematics
DPDT
SW
CROSSWIRE
SWITCH
MOM.
3
1
2
6
5
(CB3 ONLY INSTALLED
WITH SOLAR OPTION.)
PNL
CTL
BLK
GRN
RED
INPUT OUTPUT
11
CTL
INV
CROSSOVER WIRED
11
RJ11 STRAIGHT WIRED
11 11
RJ11 CROSSOVER WIRED
11
RJ11 WIRING REFERENCE
INSTALL LABELS
A/S# 386275 & 386277
WARNING: (MF1a)
STAINLESS STEEL FLAT
SPACER WASHER A/S# 300168
IS REQUIRED BETWEEN FUSE
BLADE AND RING TERMINAL.
SEPARATOR
DASH
CHAS
COACH
CTL
BD
IGN.
GND
GEN.
11
11
PORT
REMOTE
PORT
ACC
SOL. CONN.
SOL. CONN.
WARNING: (Service)
BATTERY GROUND BONDS MUST BE
DISCONNECTED BEFORE 12VDC ELECTRICAL
SERVICE FOR BOTH VEHICLE AND COACH
SERVICE.
INSTALL LABEL A/S# 386291 @ BOTH
GROUND BOND LOCATIONS.
150
GN1b
GN1
GREEN
LIGHT
GN1c
150
(CHASS. GND)
(STOP)
(START)
RUNNING
SPDT SPR. CTR
SWITCH/LIGHT WIRING
2) CHASSIS CONNECTS GRD.
1) TAPE OFF UNUSED WIRES.
AIRSTRONAN
WIREWIREDESCR.
HR MTR
START
STOP
GROUND
GRYE
REDC
WHT/REDB
WHTA
FIGURE #1
GN1a
150
(CHASS. GND)
HOUR METER
+
-
ONAN START
SWITCH LAYOUT
(BACK VIEW)
GN1a
GN1b
150
GN1
5
4
3
2
1
a b
150
Note #2O
Note #1O
LP 2.5KW GENERATOR WIRING
(ONAN)
WIRE INTERFACE CHART TO
ONAN GENERATOR
AIRSTR
CIR. #
GN1a
GN1
GN1b
150
1O & 2O NOTE SEE SHEET #2
FAULT ORGF GN1c
DPDT
SW
CROSS WIRE
SWITCH
MOM.
INPUT
OUTPUT
BLK
GRN
N/C RED

Table of Contents

Related product manuals