EasyManua.ls Logo

Aleko LOCKMASTER L110C - Installation

Aleko LOCKMASTER L110C
17 pages
Print Icon
To Next Page IconTo Next Page
To Next Page IconTo Next Page
To Previous Page IconTo Previous Page
To Previous Page IconTo Previous Page
Loading...
ALEKO AC-2000 SLIDING GATE OPERATOR
5
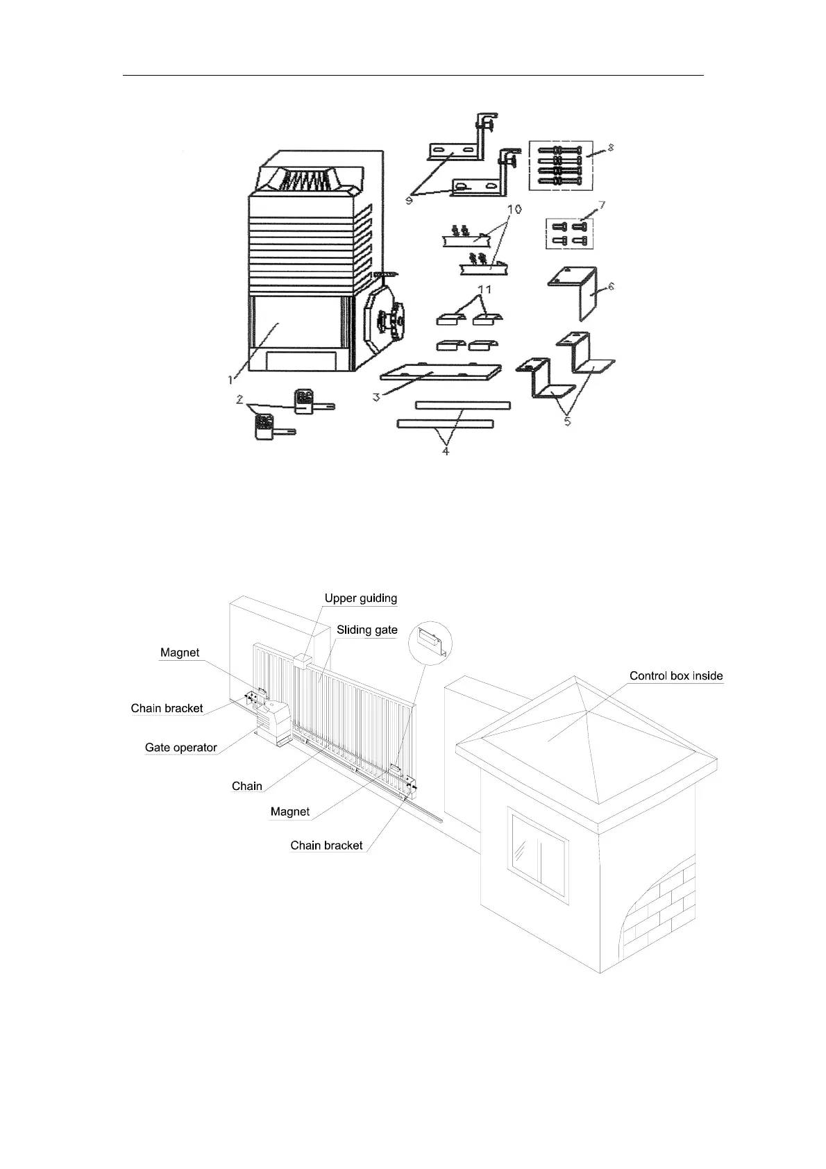
Fig.2 AC-2000 accessories
5. Installation
The AC-2000 Chain-driven Gate Operator operates by forcing a straight piece of chain.
This length of chain is extended between two chain brackets located at opposite ends of the
gate. The entire configuration is shown in the diagram below.
Fig.3 AC-2000

Related product manuals