EasyManua.ls Logo

Alfa Plam COMMO COMPACT 32 - Pellet Boiler Hydraulic Installation Diagram (Radiator Heating)

Alfa Plam COMMO COMPACT 32
32 pages
Print Icon
To Next Page IconTo Next Page
To Next Page IconTo Next Page
To Previous Page IconTo Previous Page
To Previous Page IconTo Previous Page
Loading...
27
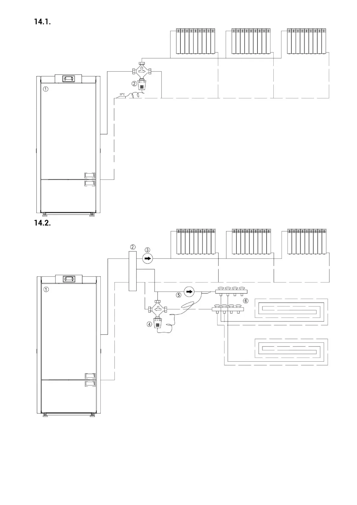
Pellet boiler hydraulic installation diagram (radiator heating )
Pellet boiler hydraulic installation diagram (radiator and floor heating)
Legenda:
1. Pellet boiler
2. Three-way mixing valve with pipe thermostat
Legenda:
1. Pellet boiler
2. Hydraulic separator
3. Circulation pump
4. Three-way mixing valve with pipe thermostat
5. Circulation pump
3. Floor heating divider

Table of Contents