EasyManua.ls Logo

ALLEN & HEATH GL3800 - Installing the Console; Ventilation and Placement

ALLEN & HEATH GL3800
74 pages
Print Icon
To Next Page IconTo Next Page
To Next Page IconTo Next Page
To Previous Page IconTo Previous Page
To Previous Page IconTo Previous Page
Loading...
Kernick Industrial Estate,
Penryn, Cornwall,
England. TR10 9LU
+44 (0)8707 556250
+44 (0)8707 556251
3
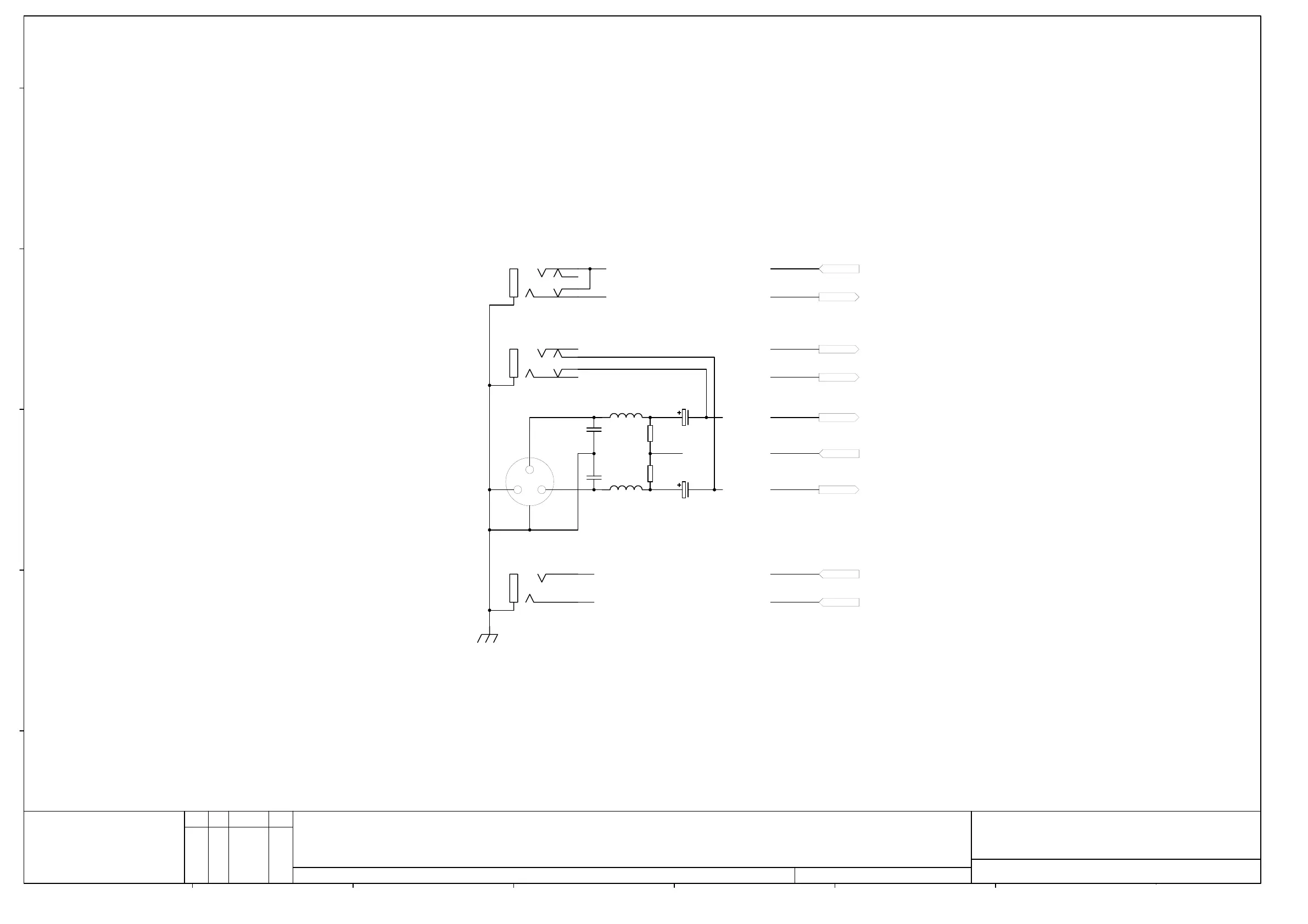
GL2800 MONO CONN PCB
C5402 5 5
PAGE:
TITLE:
DRG No: ISSUE: SHEET: OF
ISSUE BY DATE
FILE: C5402_3 CH4.Sch 10:15:52 7-Jun-2005
ALLEN&HEATH
Tel:
Fax:
PRINTED:
ABCDEFGH
a
b
c
d
e
CHK
BY
3
1 2
0
CN103_3
XLR NC3FAV20
T
R
CN102_3
JACK V3M
T
R
CN101_3
JACK V5M
C103_3
47/63
C102_3
47/63
R100_3
6K8 1%
R101_3
6K8 1%
LINE+
LINE-
MIC+
MIC-
+48V_SW
DIR_OUT+
DIR_OUT-
T
R
CN100_3
JACK V5M
INSEND
INSRET
L100_3
FB-TH
L101_3
FB-TH
C100_3
15P/DISK
C101_3
15P/DISK
MIC-
+48V_SW
MIC+
DIR_OUT+
DIR_OUT-
LINE-
LINE+
INSRET
INSEND
LINE+
LINE-
MIC+
MIC-
+48V_SW
DIR_OUT+
DIR_OUT-
INSEND
INSRET
A AAT XXX
CH4 CONNS
12-11-03
1 MG 24-8-04
2 MG XXX25/02/05
3 MG XXX29/04/05
003-228 iss.3

Other manuals for ALLEN & HEATH GL3800

Related product manuals