EasyManua.ls Logo

ALLEN & HEATH WZ14:4:2 - Installing the Console

ALLEN & HEATH WZ14:4:2
21 pages
Print Icon
To Next Page IconTo Next Page
To Next Page IconTo Next Page
To Previous Page IconTo Previous Page
To Previous Page IconTo Previous Page
Loading...
8 WZ14:4:2 USER GUIDE
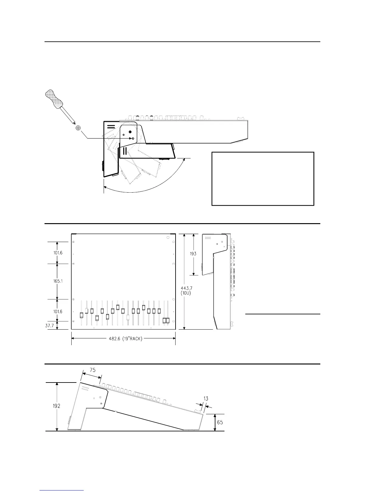
INSTALLING THE CONSOLE
The Mix Wizard Series features the ALLEN & HEATH Quick Change Connector (QCC)
system. The rear connector pod may be hinged and locked into either of two positions:
Rear connectors for desktop operation with the control panel sloped at a convenient 15
degrees, or underside connectors for 19" rack mounting in a compact 10U space. The
connector position can be easily changed at any time to fit your application.
To change the
position remove the
crosshead locking
screw on each side,
swing the connector
pod into position, and
refit the two screws
PRECAUTION :
Do not transport or carry the
console with the locking screws
removed.
Do not attempt to remove the
connector pod from the console.
19” RACK MOUNTING
Mount the console in the
rack using 4x M6 bolts each
side for maximum strength.
We recommend you fit the
bolts with plastic cup
washers to protect the
panel, and they look good...
These should be available
from the supplier of the rack
unit or a good hardware
store.
FLIGHTCASING
The console can be easily
flightcased in either
connector mode. Provide
the dimensions shown here
to your flightcase supplier.
DESKTOP OPERATION
The console is fitted with rubber
feet to ensure it does not slip or
scratch the work surface. The
control panel is angled at 15
degrees for operating
convenience.

Related product manuals