EasyManua.ls Logo

Allen-Bradley 1769-L19ER-BB1B - Page 40

Allen-Bradley 1769-L19ER-BB1B
327 pages
To Next Page IconTo Next Page
To Next Page IconTo Next Page
To Previous Page IconTo Previous Page
To Previous Page IconTo Previous Page
Loading...
Rockwell Automation Publication 1769-UM021G-EN-P - October 2015 43
Install the CompactLogix 5370 L2 Controller Chapter 2
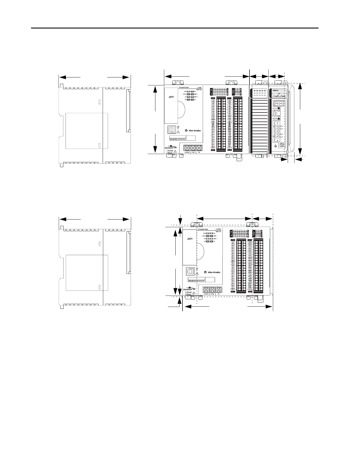
This graphic shows the system dimensions for the 1769-L24ER-QBFC1B
controller with expansion modules installed.
This graphic shows the system dimensions for the
1769-L27ERM-QBFC1B controller.
This graphic shows the system dimensions for the
1769-L27ERM-QBFC1B controller with expansion modules installed.
118.00 mm
(4.65 in.)
35.00 mm
(1.38 in.)
105 mm
(4.13 in.)
140.00 mm
(5.51 in.)
18.00 mm
(0.71 in.)
25.00 mm
(0.98 in.)
126.6 mm
(4.98 in.)
118.00 mm
(4.65 in.)
105 mm
(4.13 in.)
140.00 mm
(5.51 in.)
84.70 mm
(3.33 in.)
27.65 mm
(1.09 in.)
3.06 mm
(0.12 in.)
2.8 mm
(0.12 in.)

Table of Contents

Related product manuals