EasyManua.ls Logo

Alliance Laundry Systems Washer-Extractor - Page 22

Alliance Laundry Systems Washer-Extractor
112 pages
Print Icon
To Next Page IconTo Next Page
To Next Page IconTo Next Page
To Previous Page IconTo Previous Page
To Previous Page IconTo Previous Page
Loading...
Specifications and Dimensions
F232135
20
© Copyright, Alliance Laundry Systems LLC – DO NOT COPY or TRANSMIT
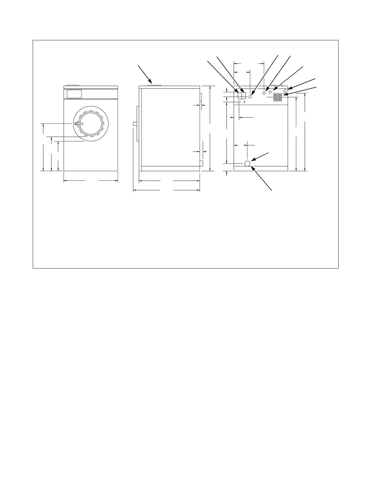
Figure 9
CHM2019N
1 Supply Dispenser 5 Hot Water Inlet
2 Input Power Block 6 Extra Inlet Valve
3 External Chemical Supply Signal Terminal Strip
(OPL only)
7 External Chemical Supply Inlet (OPL only)
8 Vacuum Breaker
4 Cold Water Inlet 9 Drain Outlet
CHM2019N
1
2
3
4
6
5
7
8
9
A
B
C
D
F
E
G
H
L
M
K
N
O
P
18, 20, 25, 27, 30, 35, 40, 50, 60 AND 80 POUND CAPACITY MACHINES
J
I
R
Q
S

Table of Contents

Related product manuals