EasyManua.ls Logo

Alpha InTec2 25XE - Page 8

Alpha InTec2 25XE
68 pages
Print Icon
To Next Page IconTo Next Page
To Next Page IconTo Next Page
To Previous Page IconTo Previous Page
To Previous Page IconTo Previous Page
Loading...
8
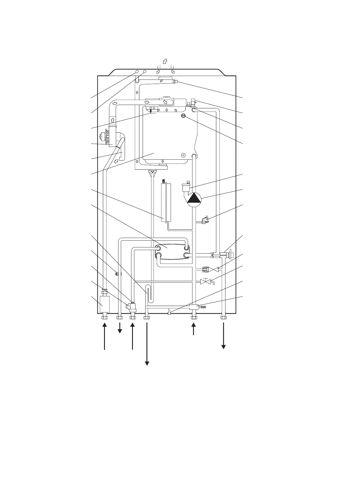
2.7 BOILER SCHEMATIC
1 - Gas valve
2 - DHW flow switch and filter
3 - Flow regulator
4 - DHW sensor
5 - Condensate trap
6 - N/A
7 - DHW heat exchanger
8 - Expansion vessel
9 - Primary heat exchanger
Fig. 2.4
10 - Air/gas mixer
11 - Fan
12 - Ignition/detection electrode
13 - Air test point (pressure point -)
14 - Flue test point (pressure point +)
15 - Flue temperature sensor
16 - Manual air vent
17 - Primary temperature sensor
18 - Overheat thermostat
19 - Automatic air vent
20 - Pump
21 - Primary pressure switch
22 - Diverter valve
23 - Automatic bypass
24 - Drain point
25 - Safety valve indicator
26 - Safety valve
Alpha InTec² 25XE and 28XE - Technical Data
Gas
Condensate discharge
and expansion relief
Primary
Heating
return
Primary
Heating flow
Domestic
hot water
outlet
Cold mains
water inlet
15
16
17
18
19
20
21
22
23
24
25
26
14
13
12
11
10
9
8
7
5
4
3
2
1
F(+) A(-)

Related product manuals