EasyManua.ls Logo

Alpha InTec2 28XE - Wiring Diagram

Alpha InTec2 28XE
68 pages
Print Icon
To Next Page IconTo Next Page
To Next Page IconTo Next Page
To Previous Page IconTo Previous Page
To Previous Page IconTo Previous Page
Loading...
45
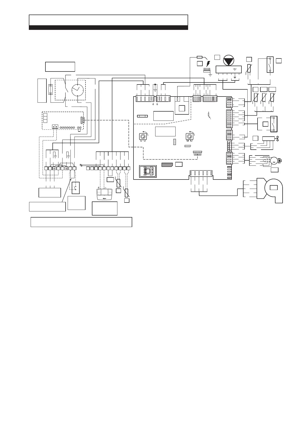
8.1 ILLUSTRATED WIRING DIAGRAM
8 WIRING DIAGRAM
Alpha InTec² 25XE and 28XE - Wiring Diagrams
Colour Code
Bk ......Black
Bl .......Blue
Br .......Brown
G ........Green
Gy ......Grey
G/Y ....Green/Yellow
Or.......Orange
R ........Red
V ........Violet
W .......White
Y ........Yellow
Component identification
A19 ..........Removable memory
B1 ............Flow sensor
B2 ............DHW sensor
B4 ............External sensor (optional)
B9 ............DHW inlet sensor (optional)
B10 ..........Flue sensor
B24 ..........Flow safety sensor
E3 ............Ignition and detection electrode
M1............Boiler pump
M20..........Fan
M30..........3-way valve motor
S4 ............DHW flow switch
S5 ............System pressure switch
T1 ............Transformer
T2 ............Ignition unit
X70 ..........Safety thermostat low temperature jumper
Y1 ............Gas valve
CH SET
+
1
6
X7
Programmer clock
(optional)
X21
X26
50 51 52 53 54 55 56 57 58
X20
Relay board
(optional)
Remove link to
connect clock
Mains Supply
220 V ~ 50 Hz
Remove link to connect
220 V room thermostat
Room
thermostat
(optional)
Alpha
Climatic Control
(optional)
When an Alpha Climatic control is connected to terminals 41 and 44
remove the links between terminal blocks 1 and 2
X70
A19
B4
B9
DHW SET
+
R5
R6
Low voltage
connections
220 V
connections
V
V
V
V
Y1
E3
M1
B1
S5
-UB
PWM
GND
HS
+UB
M20
B24
B10
M30
Bk
Or
Bl
W
R
W Bk
Bl
Or
R
R
Bl
Br
Y
Bk
Bk
Br
Br
Y
Y
Y
R
Br
Br
Bk
Bl
M
W
Or
Bk
R
Or
R
W
Bk
1 2 3 4
Or
Or
R
W
Or
R
W
Or
R W
R W
G
GY
G
GY
B2
S4
G GY
GYG
Bl
Br
Br
Bk
Bl Bk
Bk
Bk
Bl R Bk
R
Br
Br
Or
Y
W Y Bl
3
1
2
4
R
Bl
Br
R
R
Br
Bl
Bk
Bl
Br
R Br
Or
Y
Bl Bk Br W Y
G/Y
G/Y
Br
Bl
G/Y
X1 X2 X4
X9
X10
X11
X12
X13
X14
X15
X16
X6
X8
X5
R2
1
1
T1
T2
Fuse 3.15 AF
N
L
3 2
3
2 1 4 1 7 1
5
1
9
1
5
1
4
1
6
1
6
1
1
6
L
N
A
B
1
2
21
40
41
44
41 14
15
38 39 38 48
PWM
GND
OUT
L N

Related product manuals