EasyManua.ls Logo

Amada HFA-250W - Page 32

Default Icon
174 pages
Print Icon
To Next Page IconTo Next Page
To Next Page IconTo Next Page
To Previous Page IconTo Previous Page
To Previous Page IconTo Previous Page
Loading...
I-12
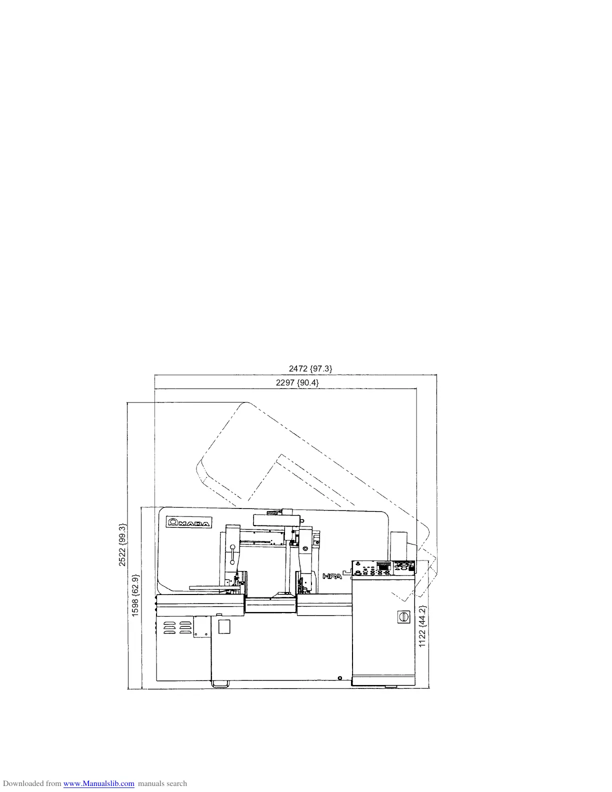
Machine dimensions
Unit: mm {in.}
2472 {97.3}
2297 {90.4}
2522 {99.3}
1598 {62.9}
1122 {44.2}

Table of Contents

Related product manuals