EasyManua.ls Logo

Amana PGB**C - Page 78

Amana PGB**C
85 pages
Print Icon
To Next Page IconTo Next Page
To Next Page IconTo Next Page
To Previous Page IconTo Previous Page
To Previous Page IconTo Previous Page
Loading...
78
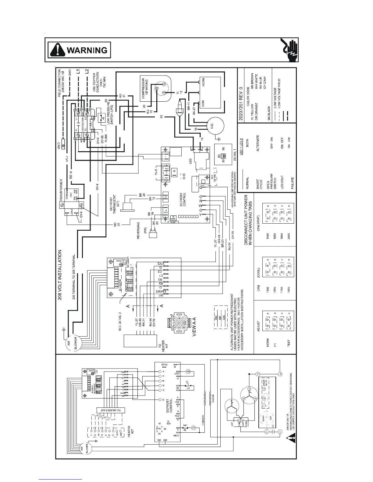
WIRING DIAGRAMS
HIGH VOLTAGE!
DISCONNECT ALL POWER BEFORE SERVICING OR INSTALLING THIS
UNIT. MULTIPLE POWER SOURCES MAY BE PRESENT. FAILURE TO
DO SO MAY CAUSE PROPERTY DAMAGE, PERSONAL INJURY OR DEATH.
PHD48, PHB60
VT VIOLET
GN GREEN
RD RED
HI VOLTAGE
HI VOLTAGE FIELD
FAN
COMP
OD
FA N
FAN
MOTOR
CIRCULATION
(ACB)
FOR PROPER OPERATION ON 208 VOLT THE
FOLLOWING CHANGE MUST BE MADE:
MOVE RD6 WIRE FROM TRANSFORMER
VT
COMMON
FAN
SOLENOID
PIN 1
PIN 2
PIN 3
PIN 4
PIN 5
PIN 6
PIN 7
PIN 8
PIN 9
TEST
HEATCRAFT
RD-13
RD-13
F
A
N
FAN
CAPACITOR
DIAGNOSTICS
OPERATION
BOARD
FLASHING
FLASHING
24V
RD-27
VT-14
VT
VT-20
RD -10
DIAGNOSTICS
RD-27
VT
VT
VT
(-)
A
B
A
B
VT-14
RD-31
INTERFACE
CIRCULATION
(ACB)
(-)
OPTIONAL

Table of Contents

Other manuals for Amana PGB**C

Related product manuals